Australia Australia Claremont Serial Killer, 1996 - 1997, Perth, Western Australia - #11

Status
Not open for further replies.
  • #721
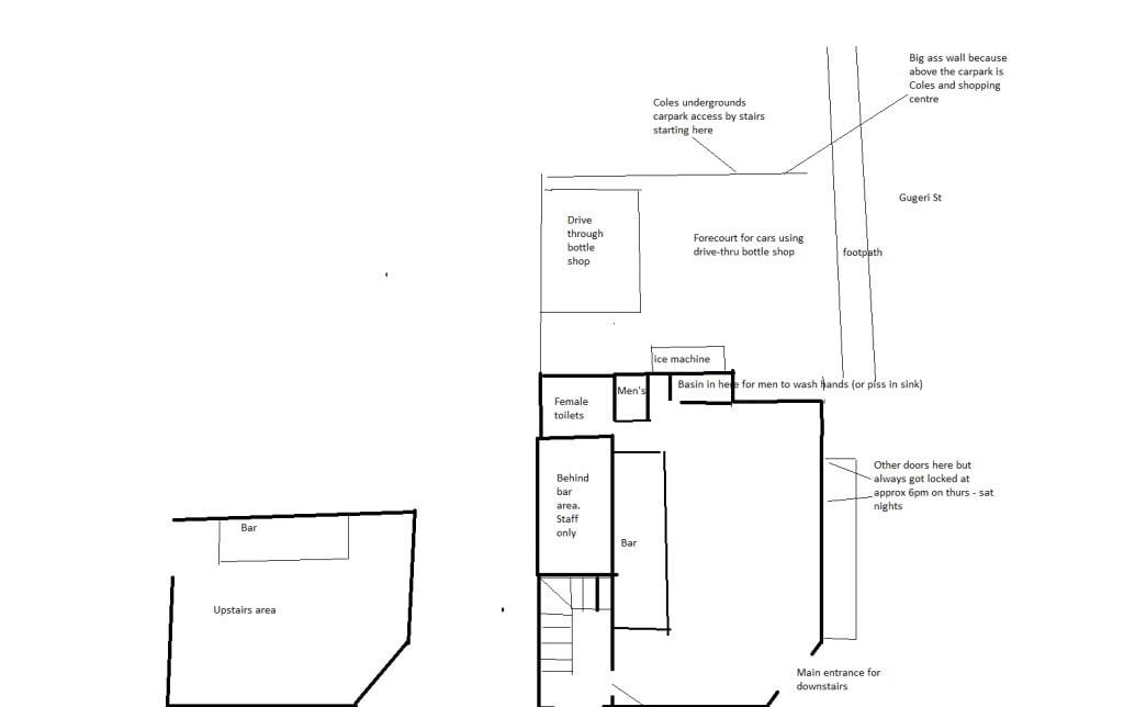
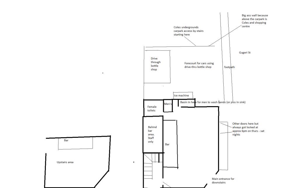
the Conti staff door didn't exit through the bar staff section. it was in back left corner, either on back wall or left wall. A bouncer always stood near the door so only staff entered and exited. Actaully think it was on Back wall, and toilet doors were on left wall at back (imagining you're walking on front door shown on Jane's video)

Where on this blueprint were the rear doors?

(Blue print is a quick/rough sketch made by Bart.)

275c6f6a0558b7d70e26c5affe451356.jpg
 
  • #722
blueprint is wrong so i can't say sorry.
 
  • #723
Also the Conti/Red Rock/Claremont Hotel moved the main bar around over the years. at one point around late 90's the bar went straight through the middle of the room. in shape of a long skinny rectangle with round ends.
 
  • #724
Also the Conti/Red Rock/Claremont Hotel moved the main bar around over the years. at one point around late 90's the bar went straight through the middle of the room. in shape of a long skinny rectangle with round ends.

But surely the location of the staircase didn't change, did it? I mean the bathrooms are still in the same place, correct? Can you use those two markers and say where the rear doors are?
 
  • #725
But surely the location of the staircase didn't change, did it? I mean the bathrooms are still in the same place, correct? Can you use those two markers and say where the rear doors are?
Yes stairs in same spot.
I can only recall the ladies toliets which were far back left corner, door on left wall.
back door is on back wall, there's only one back wall if you walk in from front door you can see in Janes video. ie the front door on Bay View Tce , NOT front door on Bart's diagram.
but let me just check Janes vid/stills again
 
  • #726
Thanks for your answer, Spooks-R-Us.
-----

Up until very recently, it has been a pleasure. I hope all of the CSK's victims find peace. Goodnight.
 
  • #727
Yes stairs in same spot.
I can only recall the ladies toliets which were far back left corner, door on left wall.
back door is on back wall, there's only one back wall if you walk in from front door you can see in Janes video. ie the front door on Bay View Tce , NOT front door on Bart's diagram.
but let me just check Janes vid/stills again

EDIT - Ignore Barts main door entrance (corner of Bay View Tce and Gugeri St), becasue I recall that door being closed in the 90's, because sometimes the stage would go there (as opposed to stage at back west corner, train line side.)
The main entrance in use for the Conti in late 90's was entrance you can see in Jane's video stills, which is on Bay View Tce.
So imagine walking in here, you immediately are faced with the stair case.
The back staff door was on back wall, most western end, wall that is closest to bottle shop and wall with male toilets in Barts diagram
 
  • #728
Thanks for your answer, Spooks-R-Us.
-----

Up until very recently, it has been a pleasure. I hope all of the CSK's find peace. Goodnight.

thanks - i was just about to say bye too lol
 
  • #729
Are we going to look at how much he earned and what type of house he had? Come on people really? He hasn't even been convicted yet and we want to snoop that much to that level? How is this helping our websleuthing?
On the sale.

They only made $10,500 over the original price, which suggests the loan wasn't for home improvements or wasn't used for them.

When you consider costs, they did poorly.
 
  • #730
Duplicated :(
 
  • #731
Off topic / ignore freely . To petedavo , do you think this missing person was using WS ? Hes not posting on the nannup thread though is he , Nobody is .
Good on you for bringing attention to that mystery.
I hope to sleuth that thread more .

.
Nope. He's either, dead, laying low, or running another scam to attract followers to parasite off. All of which lead me to believe even if he goggled himself he wouldn't risk exposure by commenting. IMO If Gary/Simon is out there he's either on some commune that doesn't allow technology, or he's completely conned someone into hiding him. (Unless the alien rapture thing has happened as he predicted and he now a server of the Devine cocktails onboard a space ship ;) ) The thread needs new eyes.

Sent from my HTC 2PQ910 using Tapatalk
 
  • #732
Yes, I think you're right.

But this is the 16th post trying to determine where the rear doors are. This is why people are so frustrated with this thread, IMO. Someone claimed to know about the rear doors, but then provided completely irrelevant information, despite repeated pleas to answer a simple question.

I am baffled as to why the poster who claims to have played in a band at the Conti and was only allowed to use the rear doors, did not immediately look at the map and indicate where the doors are.

Sutton, not being rude and I know it's hard to keep up with the pure volume of posts here but in my original post answering a question about entries and exits I explained the location of the door. It was before you asked the question though. I was asleep by the time you were asking last night. PM me if you need more info. I can tell you exactly where it is and how it is used.

Not sure about the other poster but when I clicked on your link it didn't work. Maybe that's just my phone though.
 
  • #733
  • #734
Are we going to look at how much he earned and what type of house he had? Come on people really? He hasn't even been convicted yet and we want to snoop that much to that level? How is this helping our websleuthing?
I think you might want to back up a little. RETPI has given the forum lots of accurate fact and they don't deserve being questioning over what I consider to be part of building a picture.
 
  • #735
Did anyone check who was coming in the back door... no... if you had access you probably needed it


Sent from my iPad using Tapatalk
I would think the back door would have been quite secure meaning not every Tom, dick or Bradley could walk in off the street. Otherwise it would have been targeted for armed hold ups and the likes especially around closing time.



Sent from my Pixel XL using Tapatalk
 
  • #736
Long time reader - first time poster! Hi!
I've read the majority of threads and posts, but haven't been able to keep up with them all, so apologies if this has been said before.
As you know, BE's online name '🤬🤬🤬🤬🤬🤬🤬🤬🤬' is made up first 3 letters of names of BE, his step-daughter, and ex.
B – V – C
But did you know Club Bay View was always shortened to CBV.
C – B – V
A coincidence????
I don't think so!
If BE is CSK then he's been playing a fun game!
We don't know definately if he was with his current ex and SD at the time of the murders so yes coincidence in my eyes any way.

Sent from my Pixel XL using Tapatalk
 
  • #737
I just found some old phone books in the basement. I know this was probably brought up earlier but in the 1996 white pages, there's a BRE and EKE on Gay st Gosnells. There's also a separate record of a BE on gay st Gosnells with a different number.
There weren't any in Huntingdale from my search.
 
  • #738
Her head doesn't move At All she is just watching the door
I agree there's a group of people(bouncers) between him and her. I think one of these people may have said or did something funny, attracting both VE and Jane's attention, hence, Jane's smile
 
  • #739
I'm not sure what your sex has to do with anything. You offered information on the entrances and exits of the Conti. I asked how you knew that. Thanks for answering. Please indicate where the rear entrance/exit was on the link I provided.

You asked Mazfranc "what does gender have to do with it". You asked her in a previous quote how did she know where the exits were and was it because her" Girlfriend" worked there. I think Mazfranc assumed you thought she was a male and was confirming that she was a girl because you brought up genders in the first place.
 
  • #740
That's a decent sized pub & looks like it's had regular renos and it's on a corner. I'd be very surprised it would pass any fire safety check without at least four exits. Two front and two back, a decent sized loading area. Council should have a floor plan and the local library probably as one as well.
Yes, I think you're right.

But this is the 16th post trying to determine where the rear doors are. This is why people are so frustrated with this thread, IMO. Someone claimed to know about the rear doors, but then provided completely irrelevant information, despite repeated pleas to answer a simple question.

I am baffled as to why the poster who claims to have played in a band at the Conti and was only allowed to use the rear doors, did not immediately look at the map and indicate where the doors are.
 
Status
Not open for further replies.

Guardians Monthly Goal

Members online

Online statistics

Members online
96
Guests online
1,369
Total visitors
1,465

Forum statistics

Threads
636,532
Messages
18,698,758
Members
243,738
Latest member
AquariusM10
Back
Top