FLOOR-PLAN of Baby Lisa Irwin's home likelihood of this being stranger abduction

  • #181
  • #182
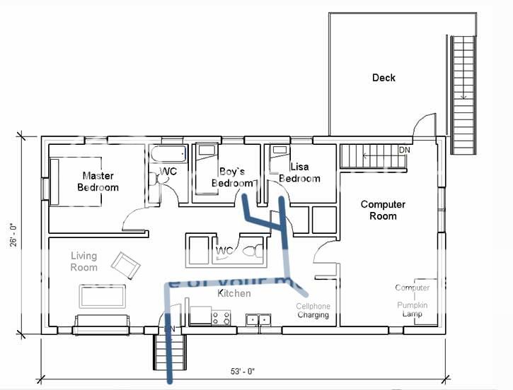
With this diagram, the intruder having come in thru the computer front window, it would seem the safest quickest way out would be the computer room door onto the deck. Going out the front door with the master bedroom so close does appear a bit risky. If we are making up stories, then we can tell it any way we want, right?
 
  • #183
:blushing: I forgot the house number. :blushing:

make sure you put it in like this or it won't work-I had to try several times!

3620 N Lister Dr (no street suffix)
 
  • #184
make sure you put it in like this or it won't work-I had to try several times!

3620 N Lister Dr (no street suffix)

I knew it was 3620, but now I see where I was making a mistake by using the (street suffix). Thanks.
 
  • #185
What odd about this house is there is NO side door. The home I was raised in as a child back in the 40's and built in the 40's (Cape Cod style) we had a front door and a side door into the kitchen.

My home back in PA had a front door and a side door into the kitchen.

This house has the door at the back of the house onto the deck. If the deck wasn't there OOPS!
 
  • #186
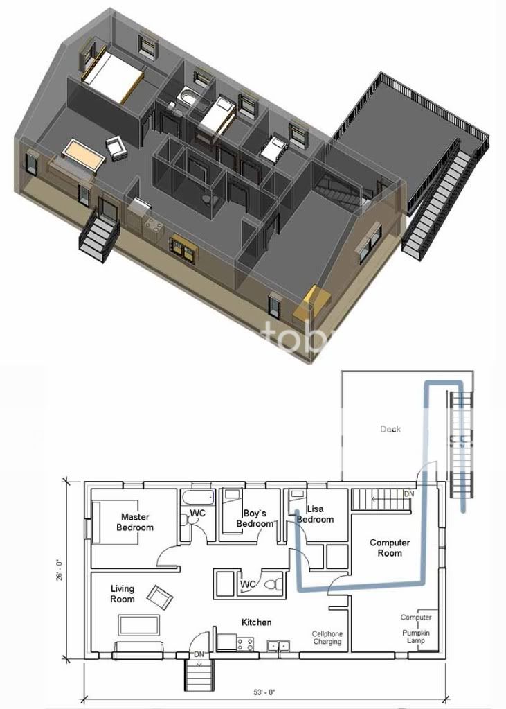
lisafloorplanortho2.jpg


lisafloorplan9.jpg
 
  • #187
What odd about this house is there is NO side door. The home I was raised in as a child back in the 40's and built in the 40's (Cape Cod style) we had a front door and a side door into the kitchen.

My home back in PA had a front door and a side door into the kitchen.

This house has the door at the back of the house onto the deck. If the deck wasn't there OOPS!

There may have been a second door off the kitchen at some point? The backdoor seems a long way from most of the house.
 
  • #188
There may have been a second door off the kitchen at some point? The backdoor seems a long way from most of the house.

I'm thinking back to when I lived around KC, about 15 years ago. I think most of the houses that I was in that were built around the same time... if there was a door off the kitchen, then it was the back door leading directly to the backyard. I'm not sure that I've seen many with 2 back doors or a side door.
 
  • #189
I'm thinking back to when I lived around KC, about 15 years ago. I think most of the houses that I was in that were built around the same time... if there was a door off the kitchen, then it was the back door leading directly to the backyard. I'm not sure that I've seen many with 2 back doors or a side door.

Actually, with all the bedrooms in a row and the front door beside the kitchen, there isn't much choice about where to put the back door.
 
  • #190
So are you thinking that Lisa's bedroom is in the middle?

Sorry, didn't see this earlier, yes, I think Lisa's bedroom is in the middle.
 
  • #191

Wow! That looks pretty spot on, Otto! :)

(Sorry to say, Nancy Grace will no doubt rip you off and claim the credit. LOL!)
 
  • #192
Wow! That looks pretty spot on, Otto! :)

(Sorry to say, Nancy Grace will no doubt rip you off and claim the credit. LOL!)

The big question seems to be whether Lisa's bedroom is in the middle or sharing a wall with the computer room. NG usually has her mind made up early on. My opinion is that it wouldn't make much difference ... the bedrooms are close to each other and ... if mom had sipped some wine and fallen asleep, someone could have sneaked in through the back door, entered the bedroom and disappeared. What time did wine with the friend stop (10:30?), when did the wine drinking stop, what time was the dumpster fire, man suspiciously seen at 2:!5?, what time did dad come home, what time was she discovered missing? We should have a time map as well.
 
  • #193
There is lots of info here:
[ame="http://www.websleuths.com/forums/showthread.php?t=150977"]Lisa Irwin-Timeline - Websleuths Crime Sleuthing Community[/ame]
 
  • #194
The big question seems to be whether Lisa's bedroom is in the middle or sharing a wall with the computer room. NG usually has her mind made up early on. My opinion is that it wouldn't make much difference ... the bedrooms are close to each other and ... if mom had sipped some wine and fallen asleep, someone could have sneaked in through the back door, entered the bedroom and disappeared. What time did wine with the friend stop (10:30?), when did the wine drinking stop, what time was the dumpster fire, man suspiciously seen at 2:!5?, what time did dad come home, what time was she discovered missing? We should have a time map as well.

I think it's exactly where you have it, Otto. In one version of the morning events, JI says he went first into the master bedroom, talked to Debbie, then checked on the boys, then checked on Lisa. Now, there seems to be different versions of the morning events, but there's no doubt JI knows the layout of his own house. So it would make sense for him to walk straight down the hall from the master, come to the boys room first, then go to Lisa's room. Why would he pass Lisa's room and go straight to the boys room, then double back down the hall to check on Lisa?

JMO
 
  • #195
I think it's exactly where you have it, Otto. In one version of the morning events, JI says he went first into the master bedroom, talked to Debbie, then checked on the boys, then checked on Lisa. Now, there seems to be different versions of the morning events, but there's no doubt JI knows the layout of his own house. So it would make sense for him to walk straight down the hall from the master, come to the boys room first, then go to Lisa's room. Why would he pass Lisa's room and go straight to the boys room, then double back down the hall to check on Lisa?

JMO

He would have walked straight in the back door into the computer room, or straight in the front door and across the living room to the master bedroom. Did he park in the garage? If that's the case, he would have entered the main part of the house though the stairs that open into the computer room. If he went to the master bedroom first, then he walked through the kitchen, passed the living room and went into the master bedroom.

Thank you ... that certainly suggests that after leaving the master bedroom, he passed (or used the bathroom), checked on the children in the first bedroom, checked on the child in the second bedroom and discovered a problem. Did he then go straight back to his bedroom thinking that his daughter had also slept in the master bedroom, along with the one son? What did he do immediately upon discovering his daughter missing? Run to the bedroom, pull back the sheets/blankets and ask where their daughter was?

That implies that Lisa'a bedroom was at the end of the hall and shared a wall with the computer room.
 
  • #196
Excellent otto! Incrediable work!

Please put it on our pictures thread when you are satisified with it? That way we can all find it for reference quickly when we want to refer to it instead of searching this thread too. :)
 
  • #197
Yes MK is right - but it was only ONE version of event from JI. In yet ANOTHER version JI said he walked in - went through the kitchen and then noticed the lights on and the screen in the computer room - he then went by the boys room and saw the older one but not the younger one - he proceeded to walk past Lisa's room - noticed the door open but didn't look in and then went into the master to see DB asleep and the younger one in their bed - he then woke up DB and asked what was going on - then they both ran to Lisa's room.

So, its hard to figure out. That version (the one above) puts Lisa's room in the middle.
 
  • #198
Yes MK is right - but it was only ONE version of event from JI. In yet ANOTHER version JI said he walked in - went through the kitchen and then noticed the lights on and the screen in the computer room - he then went by the boys room and saw the older one but not the younger one - he proceeded to walk past Lisa's room - noticed the door open but didn't look in and then went into the master to see DB asleep and the younger one in their bed - he then woke up DB and asked what was going on - then they both ran to Lisa's room.

So, its hard to figure out. That version (the one above) puts Lisa's room in the middle.

True.

But then we also have jeremy saying that the boys wouldn't have heard anyone coming through the window because their room is nowhere near the computer room. And from the doorway in the kitchen, we can clearly see Lisa's room across the hall. So, for me personally, I'm convinced that Lisa's room shares a wall with the computer room. But that's just me.
 
  • #199
Possible Intruder Path

Lisapossiblepath.jpg


Possible Dad Paths

LisaDad4ish.jpg
 
  • #200
He would have walked straight in the back door into the computer room, or straight in the front door and across the living room to the master bedroom. Did he park in the garage? If that's the case, he would have entered the main part of the house though the stairs that open into the computer room. If he went to the master bedroom first, then he walked through the kitchen, passed the living room and went into the master bedroom.

Thank you ... that certainly suggests that after leaving the master bedroom, he passed (or used the bathroom), checked on the children in the first bedroom, checked on the child in the second bedroom and discovered a problem. Did he then go straight back to his bedroom thinking that his daughter had also slept in the master bedroom, along with the one son? What did he do immediately upon discovering his daughter missing? Run to the bedroom, pull back the sheets/blankets and ask where their daughter was?

That implies that Lisa'a bedroom was at the end of the hall and shared a wall with the computer room.

BBM

The front door was the door that was unlocked, so I assume this is the door he entered through because he noticed the front door was unlocked right away. He then says he walked to the computer room and tried to shut the window, but couldn't because of the screen being screwy. The next place he puts himself is in the master bedroom, waking Debbie to ask what's going on.

(And from here, we get differently stories.)

The one account in People of him saying he went to check on Lisa and found her light on and her crib empty REALLY bugs me, though. Maybe it's just lousy reporting, I don't know. But if he went to the computer room to shut the window BEFORE he went to wake Debbie, he would have had to pass Lisa's lit up bedroom with the open door. Why would he take the kitchen/livingroom route to the master bedroom when the door to the hall was right there IN the kitchen? And if that's the route he took, he would have HAD to have noticed Lisa's door open and light on. Okay fine, maybe he thought the baby was in bed with Debbie. But if that's the case, how come when he sees the baby ISN'T with Debbie, he checks on the boys first? Doesn't make sense.
 

Guardians Monthly Goal

Members online

Online statistics

Members online
76
Guests online
1,296
Total visitors
1,372

Forum statistics

Threads
635,407
Messages
18,675,772
Members
243,214
Latest member
MissingPerson
Back
Top