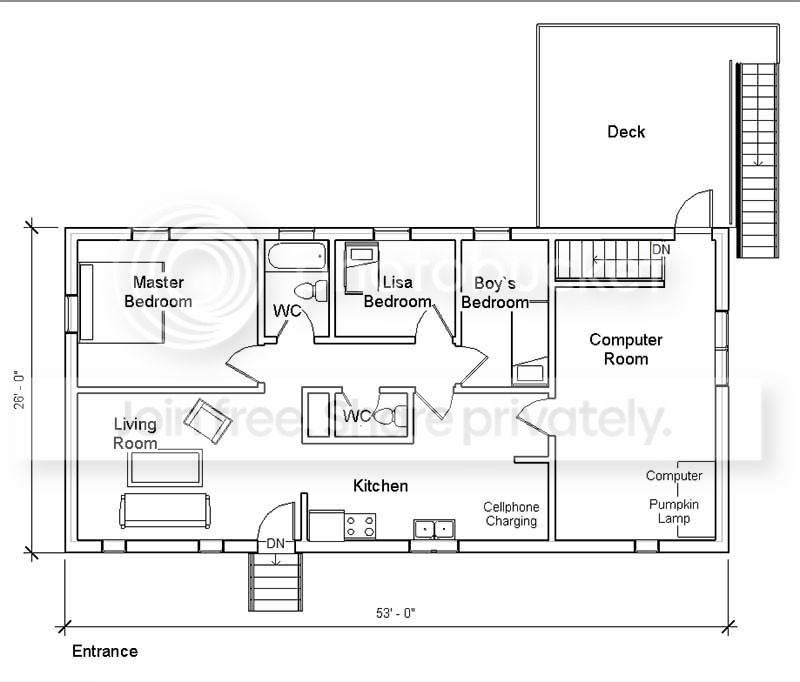
FLOOR-PLAN of Baby Lisa Irwin's home likelihood of this being stranger abduction

  • #241
Peter Alexander coming from kitchen into the hallway. Note the position of the boys room to Peter's right as he heads to Lisa's room almost straight in front of him.
 

Attachments

  • Coming out of kitchen to hall way..JPG
    Coming out of kitchen to hall way..JPG
    56.9 KB · Views: 42
  • #242
Opening to what we believe to be the second bathroom.
 

Attachments

  • Opening to Bathroom.JPG
    Opening to Bathroom.JPG
    41.5 KB · Views: 35
  • #243
Please, let's keep this thread for the floor plan so we can get the floor plan as close as possible. Thanks so much.
 
  • #244
  • #245
  • #246
Showing basement stairs.
 

Attachments

  • Stairs.JPG
    Stairs.JPG
    45.9 KB · Views: 44
  • #247
  • #248
FWIW, I have not heard back from ABC or NBC regarding my questions. Sent tweets out to 3 reporters with ABC and 1 with NBC. (I don't like to be ignored.) :banghead:

Questions I asked:
Are there stairs in the Irwin home to go downstairs, and if so, where are they located in the house? Thanks.

Do you know if there is another room to the left of Lisa's bedroom room heading towards the parents room?

Is there an exit to the deck from the computer room?
 
  • #249
  • #250
2:05 mark...room at end of the hall has bunkbeds! The boys room IS at the end of the hall!

So now, we really CAN nail this floorplan down! YAY!
 
  • #251
So wait...the abductor would have had to have taken 3 cellphones BEFORE taking Lisa?!
 
  • #252

Attachments

  • This door.JPG
    This door.JPG
    41.2 KB · Views: 34
  • #253
The door at the end of the hallway is the boy's bedroom. The door with the blue arrow is the kitchen. The boy's room faces the parents bedroom at the other end.

Right, I saw that on the second viewing, Patty.

What I don't get is why, according to the parents statements, Jeremy went to Debbie's room, asked about the lights, door, window, etc., recalled that Lisa's bedroom door was open...and then Jeremy goes and checks on the boys first. He would have had to have walked right past Lisa's bedroom door. Wouldn't you check on the kids in the order of their rooms? Especially if it's true that Lisa's light was on (People mag article), and her bedroom door was open. :waitasec:
 
  • #254
Right, I saw that on the second viewing, Patty.

What I don't get is why, according to the parents statements, Jeremy went to Debbie's room, asked about the lights, door, window, etc., recalled that Lisa's bedroom door was open...and then Jeremy goes and checks on the boys first. He would have had to have walked right past Lisa's bedroom door. Wouldn't you check on the kids in the order of their rooms? Especially if it's true that Lisa's light was on (People mag article), and her bedroom door was open. :waitasec:

I was just doing my dishes and thought the same thing. How could he check on the boys first without passing by Lisa's room. It makes no sense at all.
 
  • #255
I was just doing my dishes and thought the same thing. How could he check on the boys first without passing by Lisa's room. It makes no sense at all.

He couldn't. Not unless he walked from his room, through the livingroom, through the kitchen, and back through the door to the hall. Why on god's green earth would he take THAT circuitous route? he wouldn't. Plain and simple.

Do you have a link to the full MK interview by any chance?
 
  • #256
I am wondering also, if there is even a doorway from the living room into the hallway near the parent's bedroom. This house is really small.
 
  • #257
Do you have a link to the full MK interview by any chance?

I posted the Fox Interview in the media thread, however, it just doesn't seem to be the full interview.

I was looking for, probably, what you are looking for about the events when JI came home.

I know he said when he got home, DB was up, OR got up OR was awake, and then he talked to her etc., etc.

FOX's website is not user friendly, at least for me anyway.
 
  • #258
Okay, let me go search and see if I can find the interview where Jeremy tells us exactly what he did when he came home.

It was either Judge Jeanine or Megan Kelly. I'm pretty certain of that.
 
  • #259
Here's the latest

Lisafloorplan10.jpg
 
  • #260
Okay, let me go search and see if I can find the interview where Jeremy tells us exactly what he did when he came home.

It was either Judge Jeanine or Megan Kelly. I'm pretty certain of that.

I made a notation in the "Just Fact thread the following:

JI said Debra woke up when JI came home and they talked for awhile then JI told her about the lights, window, etc. (GMA)

http://abcnews.go.com/GMA/video/missing-baby-lisa-irwin-parents-stories-match-14752253

[ame="http://www.websleuths.com/forums/showpost.php?p=7241148&postcount=69"]Websleuths Crime Sleuthing Community - View Single Post - Just the facts, ma'am.[/ame]
 

Guardians Monthly Goal

Staff online

Members online

Online statistics

Members online
118
Guests online
1,727
Total visitors
1,845

Forum statistics

Threads
636,303
Messages
18,694,293
Members
243,601
Latest member
Magicfan32
Back
Top