GUILTY UK - Joanna Yeates, 25, Clifton, Bristol, 17 Dec 2010 #6

Status
Not open for further replies.
  • #461
IMO I don't think you would take spare key, unless you were pretty organised. We know that the JY and GR were untidy, therefore I would expect spare key to be under stuff somewhere and a hassle to get to ....

Although a spare key might be one of those few things kept exactly where you could find it in moments. Being untidy doesn't necessarily mean being totally disorganised.

No, of course not.
And for the record he's not on my list of suspects.

Nor mine. ;)
 
  • #462
  • #463
  • #464
  • #465
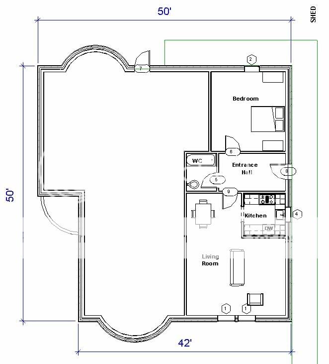
IMO, the newly released floor plan of the apartment rules out the 'answering the door with pizza in hand' scenario. jmo.

Edited to add - not that I ever thought that was the case
 
  • #466
I agree jigzy. That's blown my pizza theory right out of the water.

The disappearing pizza is one of those really mysterious happenings.
I have suggested it might have been done to cause confusion. If I'm right it has worked big time.
But hey, I'm most likely wrong!
 
  • #467
Oh my heart breaks for them. I really hope they find who did this so they can at least set their minds at some degree of rest.

I find it very interesting that this the second time in a short period that they have appealed to a potential friend/relative of the killer. They may have an idea they're onto something here surely? Especially if they're making the parents go through the process of making the appeal.

Hi Brownbread,

Do you think they suspect that the killer could have had an accomplice, perhaps a relative, who helped him dump Jo's body?

I asked a question on 1st post but no-one answered. Maybe better luck this time lol
 
  • #468
  • #469
Maybe Greg & Jo consumed the pizza. Maybe he took the box with him to Sheffield & dumped it on the way.
 
  • #470
The latest press release by DY & TY says only one thing to me - "we know it was a friend or somebody Jo knew that killed her - dont let them get away with it" just to play a little on the conscience of those supplying the perp with an alibi to cover theyre tracks.

The clock is ticking 'very loudly'.



...but I found that strange as well, I've just watched it.

http://news.sky.com/skynews/Home/Jo...elp_End_Torment_Since_Dughters_Body_Found_IRN

It wasn't a heartfelt plea in her own words.

It was the mother reading a statement verbatim. She is an articulate woman and in control of her emotions. Why would she be "reading a script" and talking about her family in the third person, when her own words would be so much more powerful?

It may well have nothing to do with the final resolution, but my instinct is to feel that any involvement the Yeates' have had, has been heavily stage-managed and quite unnatural.

This is not a criticism of the Yeates' directly. I can only hope they find some peace soon.


BTW, this new appeal has not merited a single mention on the BBC News 24 this evening.

Further to the comments about the Jo Yeates thread on Digital Spy, I noted a similar Jo Yeates thread on a forum dedicated to the Madelaine McCann mystery is being conducted in private from this Thursday. Anyone who wishes to continue reading/posting after that (and viewing is only open to registered members atm anyway) must pm admin before Thursday.
 
  • #471
I found this part of TY's appeal ambiguous and a bit of a non sequitur:
Many people surely know what has happened to Jo and are wondering if they are at risk and if so what they can do to protect themselves, something apparently insignificant could trigger the killer to kill again.
Did she leave a phrase out of that statement by mistake?
 
  • #472
  • #473
I think the parents statement today is very significant. It's obvious all the LE statements are well planned and it is apparent the family are listening to their advice as to timing of the releases and the content, to get maximum benefit to the investigation.

Despite all the other theories and possibilities, it still seems all the signals point to someone who she knew. While it's always possible it could be a stranger murder, and they should have a team looking at that angle, I think the vast proportion of resources needs to still be on those that she knew. While the circle of her acquiantences is undoubtedly large, by this point they would (should) have been tabulated, prioritized, and their alibi's checked and double checked. In today's day and age, alibi's can take the form not only of statements by others as to your whereabouts but also mobile phone signals, other electronic fingerprints (i.e. online activities) and CCTV. I am guessing that list could have up to 200-300 people on it. It would have GR, MW, CJ, PS, LORP, others in 42 and 44, everyone at BDP including those at the party, clients and contractors of BDP, all the facebook friends, anyone she had been in touch with based on phone and electronic records, former boyfriends, everyone at the rowing club, etc. By process of elimination many of those can be checked off that list on the basis of the quality of their alibi's. Those that have multiple lines of evidence of an alibi (i.e. witness account as to whereabouts plus CCTV) would have better quality alibi's than those that only have a single witness account. Not all witness accounts should be equally weighted - for example 3 people saying he was with us is better than 1 person saying he was with me (i.e. and he arrived at 10pm as far as I recall but I had 4 pints earlier in the evening, for example).

Although the time of death and location have yet to be conclusively established, the 840-920pm time frame appears to the the window of opportunity. 840pm being the end of the phone call with Rebecca, and 920pm being the time of the unanswered text. I simply don't believe that text would have been unanswered if the events that were to lead to JY's death were not already underway, regardless of how useless with her phone she was believed to be.

Isn't this also the day the "big clue" was supposed to be realized (speculated to be results of newer DNA testing)? Maybe that is not going to be the smoking gun they were hoping for and they are now realizing they are at a real risk of this becoming a cold case unless they can shake one of these alibi's from those remaining on the list. I think LE need to get through that list, forget about motive for the minute and only look at opportunity, and come up with a revised list that includes those with no valid alibi, or a shaky alibi. Is that where they now are?

A revised list of those with no alibi or a shaky alibi (i.e. single person account), would have to include GR, MW, CJ, PS and LORP, no? Any others?
 
  • #474
Someone mentioned the Madeleine McCann forum, last page. Can see why they'd make it private soon. Has many similarities with the JY case as far as stage-managing goes. Will resist getting embroiled to that extent again, though. Lost a year and more of my life there. Others lost a lot more, even going to the extent of travelling to Portugal and stepping out the distance from the apartment to the tapas bar. We analysed photos obsessively and repeatedly, measured length of shadows, examined close-ups of suspects' sandals and so much more. Keeping a distance from this case now. Noted certain similarities early on and alarms rang

Someone last page noted that the Yeates appear to be heavily staged managed too and I agree wholeheartedly. They've been weird from the start, imo

LE are behaving oddly and have done from the start, also, imo

So, another Freemasonic involvement ? I left a busy forum to come to this one because Websleuths seemed so sane compared with the former, which had been basically hijacked with Freemasonic conspiracy theory. However, having said that, it does seem the police in this case have behaved incompetently. Whether deliberately or simply because they are incompetent is the question

Last night, I read a book by a woman who set out in the 1990's to expose her father as the murderer-rapist of a little girl who vanished from within a close-knit community back in the 1950s. The father had basically admitted it to her when she met him in the 90s. The woman succeeded in having the case re-opened (in the 90s) and two capable police investigators amassed massive evidence which in turn revealed that the initial investigation, back in the 50s, had been stymied by Freemasonic buddies of her father. Again, in the 90's, the same Freemasonic cabal, occupying the ultimate authority within Scotland, succeeded once again in burying the case and evidence, despite attempted involvement by MPs and senior law establishment etc. figures to bring justice to the murdered child's remaining family. End result: the murder remains 'cold case' and the paedophile-killer remained at liberty despite there existing 122 investigations into his (paedophile) activities. And the killer's daughter, having suffered unimaginable torment and stress (not to mention personal cost and family alienation) to bring justice to that murdered little girl, was forced to resort to writing a book about it as her last hope at alerting the public. Book is entitled, ' Where There is Evil' by Sandra Brown, for anyone interested

So, Somerset and Avon LE --- WHY have you not informed the public of what Joanna Yeates was wearing when her body was discovered ? WHY should the public believe your claims of the body needing to 'defrost' before cause of death could be discovered ? WHY did you focus attention on the Clifton bridge to the exclusion of basically everything else during those crucial early days ? WHY was forensic scrutiny of JY's flat delayed until after the body was discovered ? WHY did you claim at the start there had been no forced entry to the flat and no signs of a struggle within ? WHY the contradictory suggestions by you weeks later ? Give the public ONE reason to trust a word you say -- one reason to believe you didn't deliberately cok this 'investigation' up ?

Well, Avon and Somerset LE -- I don't trust you. Based on your performance here, I wouldn't trust you to tell me the correct time and even if Bristol weren't reknowned as a seething hot-bed of Freemasonry and other perverted 'men's clubs' -- it's still becoming increasingly obvious that agendas are afoot in this case. So, come clean --- which of the suspects is themselves a member of the Freemasons and or of something like Common Purpose -- or has a father, uncle, older brother who is ?

Whatever the case, Joanna Yeates has undoubtedly earned a fortune for the Murdoch and other rags, hasn't she ? In the same way the alleged disappearance of Madeleine McCann did
 
  • #475
Actual floorplans of Joanna Yeates flat:

Yeatesfloorplans_fin.jpg


yeatesfloorplanperspecfin.jpg
 
  • #476
I see emotion in her parents' & brother's eyes. I don't see it in GR's eyes. He even looks well-rested to me.

Perhaps I'm only seeing what I want to see ... but I can't eliminate him as my #1 suspect.

Absolutely LadyL. He looks like he's just back from a holiday. Add this to something the mum said in the parents statement - if you know someone who doesn't seem affected...

I just hope it isn't so. But I couldn't be more certain the finger's pointing towards GR.
 
  • #477
...but I found that strange as well, I've just watched it.

http://news.sky.com/skynews/Home/Jo...elp_End_Torment_Since_Dughters_Body_Found_IRN

It wasn't a heartfelt plea in her own words.

It was the mother reading a statement verbatim. She is an articulate woman and in control of her emotions. Why would she be "reading a script" and talking about her family in the third person, when her own words would be so much more powerful?

I think it is purposefully stage managed. These releases aren't targetted towards the general public/us. They're specifically crafted for perp and his/her family. IMO.
 
  • #478
I think it is purposefully stage managed. These releases aren't targetted towards the general public/us. They're specifically crafted for perp and his/her family. IMO.

I say well done! I think it's perfect that Joanna's mother is making the plea to the public. Whoever did this has a mother who could have noticed something unusual in her son when Joanna was murdered. A mother's plea has so much more impact that a statement from police.
 
  • #479
  • #480
To me the mother sounds pissed off, angry, composed, and resigned. I think they know but have been told by the police to wait.

And yes the pic of GR does not cover him in glory.

He doesn't have the same expression of grief on his face.
When I first saw that, my thought was "what's wrong with this picture".
 
Status
Not open for further replies.

Guardians Monthly Goal

Staff online

Members online

Online statistics

Members online
139
Guests online
2,531
Total visitors
2,670

Forum statistics

Threads
638,904
Messages
18,734,810
Members
244,552
Latest member
fairymagic
Back
Top