Canada - Barry, 75, & Honey Sherman, 70, found dead, Toronto, 15 Dec 2017 #2

Status
Not open for further replies.
  • #361
Cams are definitely not that big...nor are motion detectors
What about one of those systems where you can see who is at the door on the screen, like a visual intercom? Sorry no idea what it is called. I don't know what they look like, but if they were in the pool when someone rang at the door they might have had one of those.
 
  • #362
I would assume that if both cars were parked in the driveway, that they entered the home through the front door.

Arial photo. The driveway to the underground garage is on the right, cars can be parked to the left of the front entrance, and it looks like it's possible to drive in front of the house from the left to the driveway.
 

Attachments

  • Sherman arial.jpg
    Sherman arial.jpg
    699.5 KB · Views: 77
  • #363
This shows both cars in one shot. That car on the left parked in a weird way. Why would you pull in so that your door was on the opposite side of the car? Or is that just me? In the Google image taken in the nicer weather the vehicle close to the front door faces the other way. That way you don't have to walk around the car to get in.
I sure wish we had a VI to tell us if that was normal for them.
da4cf0b5799914178fd1efedee385609.jpg


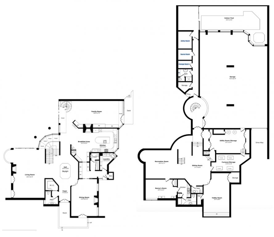
Also looking at the floor plan, the garage and pool are underground but not under the rest of the house. (Note the spiral staircase placement).
Truthfully the ideal place to take someone to murder them. You wouldn't worry about anyone hearing anything even if there were a slip-up.

Sent from my Pixel XL using Tapatalk

This is the main floor and basement level side by side
 

Attachments

  • Sherman main-lower floors.jpg
    Sherman main-lower floors.jpg
    49.6 KB · Views: 64
  • #364
It's the part about the jackets that makes me wonder if a person could do that to himself as well.

I suppose it is possible for someone to do this to themselves after pulling a jacket back onto someone else's arms.

Just because I haven't heard of anyone else doing this - doesn't mean it couldn't happen.

Every day I have more questions about this case.

I was really quickly taking off a winter coat once and both my arms got stuck behind my back simultaneously. It was a bit unnerving and I called my son for help getting out of my coat...I was literally stuck.
 
  • #365
Sorry, you've lost me... what do you mean?

B left straight from work to attend the meeting (according to the article), while H drove to the meeting from home - they both attended said meeting and drove home - and became deceased sometime thereafter. Interesting that the story claims no author, and does not divulge its sources, however, it said the two still had their winter coats and boots on, so.. sounds like someone may have been waiting inside the home?

It's also possible that something that happened in the meeting made Barry really angry, so when they got home he attacked her right away. That wouldn't explain him still wearing winter clothes, unless he put them on again to commit suicide and leave the impression that someone else was responsible.
 
  • #366
Yes, that is what I was saying, that it looks to me like it could be a camera, yet there was a newspaper article saying the home had none, inside or out (but not sure where the info is coming from). Motion sensors are not usually so large and obtrusive in my experience. jmo

It was a CBC article that said there were no cameras in the house. It was different source that said the camera in the pool area was disconnected. I wonder if a camera was installed in the pool area when the house was built thirty years ago, but that it no longer works - disconnected, and there are no other cameras in the house.
 
  • #367
What about one of those systems where you can see who is at the door on the screen, like a visual intercom? Sorry no idea what it is called. I don't know what they look like, but if they were in the pool when someone rang at the door they might have had one of those.

A door bell cam? I see who is at my door via iPad or iPhone or my laptop but much easy to look on my cell.
 
  • #368
Cams are definitely not that big...nor are motion detectors

They were that large thirty years ago when the house was built.
 
  • #369
What about one of those systems where you can see who is at the door on the screen, like a visual intercom? Sorry no idea what it is called. I don't know what they look like, but if they were in the pool when someone rang at the door they might have had one of those.

Is it possible that they had a camera in the pool area when the house was built thirty years ago because their children would be in the pool and they would want to keep an eye on them?
 
  • #370
A door bell cam? I see who is at my door via iPad or iPhone or my laptop but much easy to look on my cell.
Yes but we don't know how long ago this was installed, and in the pool area they probably wouldn't have a need for iPads, if they had them.
 
  • #371
B left straight from work to attend the meeting (according to the article), while H drove to the meeting from home - they both attended said meeting and drove home - and became deceased sometime thereafter. Interesting that the story claims no author, and does not divulge its sources, however, it said the two still had their winter coats and boots on, so.. sounds like someone may have been waiting inside the home?
Going with the murder suicide theory for a moment, which, BTW, I don't espouse, could something have occurred at that meeting to set this off?
 
  • #372
They were that large thirty years ago when the house was built.


I had the security updated when I bought my house...it is an older house and the cams were definitely not big like that 30 years ago. And, even if 30 years ago cams were that big....updated tech would be needed and no security would leave some big outdated cam in a house...especially not belonging to a billionaire. Security companies are always updating clients security as new technology becomes available. :)
 
  • #373
Going with the murder suicide theory for a moment, which, BTW, I don't espouse, could something have occurred at that meeting to set this off?

It seems a bit extreme and unlikely to kill yourself and murder your wife over the design of your new house in my opinion.
 
  • #374
Yes but we don't know how long ago this was installed, and in the pool area they probably wouldn't have a need for iPads, if they had them.

I am talking door bell cam. Is what I thought you meant. Door bell cams are relatively newer. But trust me, it is not a cam. Lol
 
  • #375
I had the security updated when I bought my house...it is an older house and the cams were definitely not big like that 30 years ago. And, even if 30 years ago cams were that big....updated tech would be needed and no security would leave some big outdated cam in a house...especially not belonging to a billionaire. Security companies are always updating clients security as new technology becomes available. :)

This is what the "disconnected" camera in the upper right corner of the pool photo looks like to me.
 

Attachments

  • Sherman pool_cam.jpg
    Sherman pool_cam.jpg
    192.4 KB · Views: 54
  • #376
Boy there is nothing leaking on this right now. Total lockdown.

As as my friend Harry Bosch would say, this is a “high jingo” case.
 
  • #377
I have been re-reading the Liknes/O’Brien murder trial. Doug Garland held a grudge for years over a patent he felt he should have been named in. While reading the thread, I did think of BS’s cousins. Thoughts by anyone knowledgeable about those murders?
 
  • #378
This is what the "disconnected" camera in the upper right corner of the pool photo looks like to me.

The one with the arrow pointing to it? I can’t see it that clearly...maybe you are right. I wish we had more info on this case. I might be looking at the wrong pool pic.
 
  • #379
It seems a bit extreme and unlikely to kill yourself and murder your wife over the design of your new house in my opinion.

In relation to having a home, three things were happening in the two weeks prior to their deaths: listing of current house, demolition of house on new property, meeting with architect immediately prior to deaths. If one wanted extravagance and the other wanted modesty, they were facing many long battles. What if the wife and architect were in agreement, and the husband was expected to go along with them? What if the cost had ballooned to ten million dollars? What if the architect demanded an pre-agreement that contracted work would not be litigated?
 
  • #380
Boy there is nothing leaking on this right now. Total lockdown.

As as my friend Harry Bosch would say, this is a “high jingo” case.

Could be, nothing has been found, to leak, although I suppose someone could leak that info.
 
Status
Not open for further replies.

Guardians Monthly Goal

Staff online

Members online

Online statistics

Members online
114
Guests online
1,581
Total visitors
1,695

Forum statistics

Threads
636,645
Messages
18,700,951
Members
243,794
Latest member
solvethecase2001
Back
Top