CANADA Canada - Barry, 75, & Honey Sherman, 70, found dead, Toronto, 15 Dec 2017 #18

Status
Not open for further replies.
  • #981
Welcome Clark2002. The Shermans street was not a dead end road. While it ended at a dead end there are several cross streets between Bayview Ave and the dead end That would allow the Sherman’s to approach their house from either end of their street
I’m completely grasping at straws here so please forgive me. Is it possible that someone other than Barry was driving, they missed the driveway and had to turn around. Possibly the police don’t want to give away that Barry entered the driveway coming from a direction that is opposite of his usual way home. Releasing the video may give away to much information and tip the perp off to what the theory is as surely someone would know that wasn’t his routine. Or on the other hand there may have been someone else in Honey’s car and because of security footage LE has identified that person but doesn’t want the person to know that. Maybe the NW is the second person involved and came on foot and left on foot hence why they say he was close to the Sherman’s home. Again, I’m grasping at straws but this case baffles me.
 
  • #982
If KD is correct, HS had her shoes on, why not run right out the front doors?
....
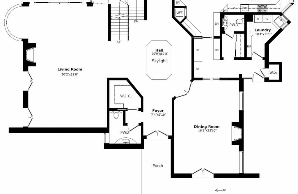
I find it odd and unlikely that H would've run to the powder-room at the front door if she had been accosted upon her entry into the home via her usual front-side-door entrance. Going by the published floorplan, once entering that door, she would've had to enter the dining room, through potentially closed 'pocket doors', which aren't necessarily speedy to open, then exit the dining room via potentially closed double doors which opened towards her, rather than outward, and into the hallway, and perhaps heading towards the front-entry-powder-room/front-door.... when she could've possibly just gone straight into the other powder-room at the front-side entry and locked the door, or the laundry room and put all of her weight and strength against the door to hold it shut. If she was going to be chased and potentially assaulted or killed, going to one of those closer rooms would've given her extra time, and would've created evidence for police to later find, if the perp then tried to break the door down to get to her. I feel like H's phone is a red herring that KD and we have no information about, other than the cleaning lady's say-so that she found it on the floor and placed it on the vanity of the front-door-powder-room which H reportedly never used. Perp or H could've thrown it down at one point and it may have been kicked (intentionally or perhaps unintentially while walking), or perp could've gone through her purse (which she would presumably have been carrying), to find her phone to ensure there were no calls made prior to her entry (ie if something may have appeared off to her beforehand)?
front side entry DR 2xpowder rm.png
 
  • #983
If HS ran to the powder room to escape her attackers, where her iPhone was found, would she not have called 911? Was her call dismissed?
I sometimes think the perp left it there as a red herring. Same thing about the papers and gloves on the floor. like bread crumbs leading to the pool room.

If it was like Mr. Arnfield and FD said it was a personal murder. (dotr post #972 in the video)

If the killing was personal IMO the staging was about that person and their situation with the pair of them. I agree with FD, to kill both in their home was personal. I also agree with Mr. A. that this was not a professional hit.

If you plan to hide the bodies in the last place anyone would look, why would a professional leave her cell phone in the front bathroom? why leave the other items on the floor by the down stair entrance? why leave the alarm off? As far as we are aware no staff saw any appearance of struggle or violence while they tidied and cleaned. IF and I mean a BIG IF TRUE (little voice in my head thinks maybe this is another exaggeration of facts once reported in the media) if the cheap Canadian tire belts were used, was one taken from BS pants and used, the 2nd was 2 floors up on a bench in a master bedroom closet as per the housekeeper, this perp had no issues wandering around the home.
 
  • #984
I sometimes think the perp left it there as a red herring. Same thing about the papers and gloves on the floor. like bread crumbs leading to the pool room.

If it was like Mr. Arnfield and FD said it was a personal murder. (dotr post #972 in the video)

If the killing was personal IMO the staging was about that person and their situation with the pair of them. I agree with FD, to kill both in their home was personal. I also agree with Mr. A. that this was not a professional hit.

If you plan to hide the bodies in the last place anyone would look, why would a professional leave her cell phone in the front bathroom? why leave the other items on the floor by the down stair entrance? why leave the alarm off? As far as we are aware no staff saw any appearance of struggle or violence while they tidied and cleaned. IF and I mean a BIG IF TRUE (little voice in my head thinks maybe this is another exaggeration of facts once reported in the media) if the cheap Canadian tire belts were used, was one taken from BS pants and used, the 2nd was 2 floors up on a bench in a master bedroom closet as per the housekeeper, this perp had no issues wandering around the home.
It seems to me that there are four ''props'' in the bizarre murder scene. imo, speculation, fwiw

HS' phone.
House report
Gloves
Canadian Tire belts.

- Honey's phone.
rbbm.
''Friends describe Honey as a powerhouse in her own right: a strategic voice on charity boards, straight to the point about her opinions, practical, and modest despite her affluence.
“She was the ultimate connector,” said Marilyn Sinclair, Honey’s vice-chair at the Sarah and Chaim Neuberger Holocaust Education Centre.
Bernie Farber, who worked with Honey on several projects over the years, said she probably had “the best Rolodex in the country.”

- House report

''After litigation against the house’s designers and builders, they wound up recouping $2 million of the contracted amount to construct the home, according to a 2006 judgment.''


- Leather gloves
''Leather Gloves is a 1948 American film noir drama sport film directed by Richard Quine and William Asher and starring Cameron Mitchell and Virginia Grey.[1] It is also known as Loser takes all and Winner Takes Nothing.''


1655993564709.png


Canadian Tire ''cheap'' leather belts
''Democracy Watch had asked Belanger’s predecessor to review two fundraisers Sherman, the founder of generic drug giant Apotex Inc., held for Trudeau and the Liberals in August 2015 during the last federal election, and in November 2016, a year after Trudeau had been sworn in as prime minister. At the time of both events, Apotex was registered to lobby the Prime Minister’s Office.''


''John the Baptist shocked his audience by his appearance: a camel-hair garment and a leather belt. Why? Because as the Hebrew version of Josephus's Wars says he was called 'Rabbi John the Baptist High Priest'. High priests wear linen girdles. Some Hebrew manuscripts of the Gospel of Matthew add that the belt he had was black. What is the significance? Roman leather was usually brown. These indications show that John had been residing in the country of Rome's hereditary enemy, Parthia. He had come to confront the guilty men of Israel. His dress was a reminder of their crimes.''
 
  • #985
I’m completely grasping at straws here so please forgive me. Is it possible that someone other than Barry was driving, they missed the driveway and had to turn around. Possibly the police don’t want to give away that Barry entered the driveway coming from a direction that is opposite of his usual way home. Releasing the video may give away to much information and tip the perp off to what the theory is as surely someone would know that wasn’t his routine. Or on the other hand there may have been someone else in Honey’s car and because of security footage LE has identified that person but doesn’t want the person to know that. Maybe the NW is the second person involved and came on foot and left on foot hence why they say he was close to the Sherman’s home. Again, I’m grasping at straws but this case baffles me.
I think LE simply doesn't want to give up anything that may potentially end up eventually locking them into one theory or another, and/or potentially working against them/their case. For example, if they were to say something, or show the public something, about the killings/crimescene/area/property.. but in the end as things became more clear to them, maybe that particular thing didn't have a bearing, or it was different than thought at the time, and maybe that particular thing could instead be utilized by the perp's legal team against police, as a reason for why they did NOT do the crime. For example........... just as a tiny possibility.... say they had a video cam view from some random camera along H's way home that evening which they believed was H in her vehicle, and it appeared she was alone in the car... but later in the investigation, LE's theory based on the info that later became available to them, changed to lead them to believe someone may have been in the car with her afterall, or that it may not have been her vehicle afterall, etc.... if LE had shown the public a view of the vehicle in which it appeared to only have the driver, then presumably the perp may use that against the prosecution's/LE's case against them during trial, saying, hey look, LE published this video on this date showing H's vehicle was only occupied by H, causing 'reasonable doubt'? That might be a dumb example, but hopefully gets the point across which I'm trying to make. imo.
 
  • #986
Do you think it’s possible that someone entered his car after he left Apotex? Possibly when he was stopped at a stop sign or red light?
I have wondered that as well. A close relative of the couple had been away in another country for a week or two, and reportedly had only arrived back home the evening prior to the murders. I've wondered if it's possible someone may have stopped their vehicle along the side of the road along B's normal route home, put the hood up, and feigned car troubles or something, in an area where there were no cameras (is there such an area on B's way home anywhere?), sure to be seen by B, who would've then stopped to give him a ride or something? Perhaps that someone may have said they'd already called to have the vehicle towed to a repair shop or whatever, and possibly even said something like he'd just arrived home the night before and was on his way to visit his parents to discuss whatever.. B took him home with him... etc. etc. etc. That particular scenario might not make sense since a towtruck driver may require the broken-down vehicle's owner to be present at time of tow, so perhaps something similar-ish but different?
 
  • #987
I have wondered that as well. A close relative of the couple had been away in another country for a week or two, and reportedly had only arrived back home the evening prior to the murders. I've wondered if it's possible someone may have stopped their vehicle along the side of the road along B's normal route home, put the hood up, and feigned car troubles or something, in an area where there were no cameras (is there such an area on B's way home anywhere?), sure to be seen by B, who would've then stopped to give him a ride or something? Perhaps that someone may have said they'd already called to have the vehicle towed to a repair shop or whatever, and possibly even said something like he'd just arrived home the night before and was on his way to visit his parents to discuss whatever.. B took him home with him... etc. etc. etc. That particular scenario might not make sense since a towtruck driver may require the broken-down vehicle's owner to be present at time of tow, so perhaps something similar-ish but different?
Similar suspicion regarding someone else in Barry's car, and the car stopped on the road scenario you suggested, is very intriguing, but most especially if it involves a tow truck! imo, speculation.
2021
2021
 
  • #988
If the perp knows the home, Sherman's habits, and the neighborhood and possibly neighbors' habits, knowing the residence entry points are not in any neighbor's camera sight lines the perp could have followed either one of them in or let themselves in before they got home. But IMO NW details said "he" was caught walking in 2 directions between 9pm-12pm Wed Dec 13. Again IMO - to and from 50 Colony - they cannot confirm the NW went on to the Sherman property just that the next camera inline view of the sidewalk past #50 did not catch the NW when he was in the area around 9pm. Then around 11:30ish I assume is when he/she/they left #50 and walked into view of the neighbor's camera again, and then they found him/her again at the released camera area approx 20 mins walk away at midnight. Again, stated as the last video camera sighting of the NW that the LE had anyway.

If it is 9 pm we have been told it is after HS arrived and shortly before BS arrived home.

A recent post - sorry I cannot find the sentence - talked about HS cell found location(s), the entry that is assumed that HS used that evening, attempting to understand how and why the phone would be where it was found.

If the person did come in the front door (knocked), unless HS was in the middle of using her phone and had it in her hand as she answered the door why would it end up where it did?
 
  • #989
If the perp knows the home, Sherman's habits, and the neighborhood and possibly neighbors' habits, knowing the residence entry points are not in any neighbor's camera sight lines the perp could have followed either one of them in or let themselves in before they got home. But IMO NW details said "he" was caught walking in 2 directions between 9pm-12pm Wed Dec 13. Again IMO - to and from 50 Colony - they cannot confirm the NW went on to the Sherman property just that the next camera inline view of the sidewalk past #50 did not catch the NW when he was in the area around 9pm. Then around 11:30ish I assume is when he/she/they left #50 and walked into view of the neighbor's camera again, and then they found him/her again at the released camera area approx 20 mins walk away at midnight. Again, stated as the last video camera sighting of the NW that the LE had anyway.

If it is 9 pm we have been told it is after HS arrived and shortly before BS arrived home.

A recent post - sorry I cannot find the sentence - talked about HS cell found location(s), the entry that is assumed that HS used that evening, attempting to understand how and why the phone would be where it was found.

If the person did come in the front door (knocked), unless HS was in the middle of using her phone and had it in her hand as she answered the door why would it end up where it did?
Why would the housekeeper put the cellphone on a vanity, in a bathroom that she knew Honey never used. Wouldn’t you think that she would have set it somewhere that would have been a bit more visible to Honey if she realized she lost her phone and went looking for it?
 
  • #990
Another thing I find weird, perhaps someone can enlighten me. The cleaning lady and physical therapist person got to the home approx the same time on that Friday morning the bodies were discovered? The cleaning lady used her key, but said the alarm was off. Didn't both the cleaning lady and the therapist know/expect that both Shermans were at home? They were apparently scheduled for their usual exercise/whatever therapy, so why would they not be home, or be expected to be home? H's vehicle was parked in its normal spot, so even more evidence that they'd be, or at least she would be, at home. So why, if they were home, or expected to be home, would the cleaning lady have expected to turn OFF the alarm... why would the alarm be ON while the occupants are presumably moving around inside the home? IIRC, the cleaning lady said something to the effect of - it struck her as odd because the alarm wasn't on and she therefore didn't need to turn it off... which leads one to believe that normally, the occupants would be indeed home for their appointments with whichever therapist, but yet the alarm would be on. And then at the same time, we've been told from the start that the Sherman's didn't believe in security, nor locking doors etc. So what's with the alarm being set while they are at home?

At 8:25 a.m., housekeeper Nelia Macatangay arrived to tidy the house and help make potato latkes. Honey and Barry were planning to take them and some gifts to daughter Alex’s house that evening for a Hannukah dinner arranged earlier in the week.

Megan Young arrived at the same time. Young was one of several personal trainers the Shermans employed. At 70, Honey had numerous joint replacements over the years, but loved to push herself with exercise. Barry, 75, tolerated it because Honey wanted him to work out.

The newspaper was sitting on the front doorstep. That was odd, the trainer and housekeeper recalled thinking. By that time on all previous Fridays, Barry had opened the front door, taken in the paper and was reading it in the kitchen, waiting for Young. It was always the same on Fridays. Young would train Barry with some light exercises for an hour in a small upstairs gym area off their bedroom; Honey would do a more vigorous workout for the next two hours while Barry went to work.

Macatangay collected the paper, and the mail, and she and the trainer walked to the side door. It was locked. Macatangay used her key and was surprised to find the alarm system was off. As she later told police, it was always armed when she arrived. Honey’s aging gold Lexus SUV was in its regular spot by the side door.


‘Someone has killed my clients’: Newly released documents detail the day Barry and Honey Sherman were found dead, and what police did after
 
Last edited:
  • #991
Why would the housekeeper put the cellphone on a vanity, in a bathroom that she knew Honey never used. Wouldn’t you think that she would have set it somewhere that would have been a bit more visible to Honey if she realized she lost her phone and went looking for it?
the only thought that comes to my mind is she was not aware it was HS phone, with real estate people in she could have easily thought it was theirs and put it up so they could retrace steps and find it.
 
  • #992
Another thing I find weird, perhaps someone can enlighten me. The cleaning lady and physical therapist person got to the home approx the same time on that Friday morning the bodies were discovered? The cleaning lady used her key, but said the alarm was off. Didn't both the cleaning lady and the therapist know/expect that both Shermans were at home? They were apparently scheduled for their usual exercise/whatever therapy, so why would they not be home, or be expected to be home? H's vehicle was parked in its normal spot, so even more evidence that they'd be, or at least she would be, at home. So why, if they were home, or expected to be home, would the cleaning lady have expected to turn OFF the alarm... why would the alarm be ON while the occupants are presumably moving around inside the home? IIRC, the cleaning lady said something to the effect of - it struck her as odd because the alarm wasn't on and she therefore didn't need to turn it off... which leads one to believe that normally, the occupants would be indeed home for their appointments with whichever therapist, but yet the alarm would be on. And then at the same time, we've been told from the start that the Sherman's didn't believe in security, nor locking doors etc. So what's with the alarm being set while they are at home?
when she said off I think she meant "not armed". The alarm can be on when you are in the home, it is when a door (with wired contacts) is opened that the alarm will "notify" you that an entry (or exit) has occurred. One must enter a code and disarm the beeping from progressing into a full alarm sound off.
 
  • #993
  • #994
Another thing I find weird, perhaps someone can enlighten me. The cleaning lady and physical therapist person got to the home approx the same time on that Friday morning the bodies were discovered? The cleaning lady used her key, but said the alarm was off. Didn't both the cleaning lady and the therapist know/expect that both Shermans were at home? They were apparently scheduled for their usual exercise/whatever therapy, so why would they not be home, or be expected to be home? H's vehicle was parked in its normal spot, so even more evidence that they'd be, or at least she would be, at home. So why, if they were home, or expected to be home, would the cleaning lady have expected to turn OFF the alarm... why would the alarm be ON while the occupants are presumably moving around inside the home? IIRC, the cleaning lady said something to the effect of - it struck her as odd because the alarm wasn't on and she therefore didn't need to turn it off... which leads one to believe that normally, the occupants would be indeed home for their appointments with whichever therapist, but yet the alarm would be on. And then at the same time, we've been told from the start that the Sherman's didn't believe in security, nor locking doors etc. So what's with the alarm being set while they are at home?

At 8:25 a.m., housekeeper Nelia Macatangay arrived to tidy the house and help make potato latkes. Honey and Barry were planning to take them and some gifts to daughter Alex’s house that evening for a Hannukah dinner arranged earlier in the week.

Megan Young arrived at the same time. Young was one of several personal trainers the Shermans employed. At 70, Honey had numerous joint replacements over the years, but loved to push herself with exercise. Barry, 75, tolerated it because Honey wanted him to work out.

The newspaper was sitting on the front doorstep. That was odd, the trainer and housekeeper recalled thinking. By that time on all previous Fridays, Barry had opened the front door, taken in the paper and was reading it in the kitchen, waiting for Young. It was always the same on Fridays. Young would train Barry with some light exercises for an hour in a small upstairs gym area off their bedroom; Honey would do a more vigorous workout for the next two hours while Barry went to work.

Macatangay collected the paper, and the mail, and she and the trainer walked to the side door. It was locked. Macatangay used her key and was surprised to find the alarm system was off. As she later told police, it was always armed when she arrived. Honey’s aging gold Lexus SUV was in its regular spot by the side door.


‘Someone has killed my clients’: Newly released documents detail the day Barry and Honey Sherman were found dead, and what police did after
Great points. Something else that I find odd is that the housekeeper noticed the newspaper sitting on the front step and said that on Fridays Barry would be waiting for them in the kitchen reading the newspaper. Would Barry not have to turn the alarm off to go outside and get the paper? Why would the housekeeper find it odd that the alarm was off when she arrived that Friday when presumably Barry would always turn it off before she arrived. I find it hard to believe that Barry would turn the alarm off, open the door to retrieve the newspaper and then reset the alarm after coming back inside.
 
  • #995
Great points. Something else that I find odd is that the housekeeper noticed the newspaper sitting on the front step and said that on Fridays Barry would be waiting for them in the kitchen reading the newspaper. Would Barry not have to turn the alarm off to go outside and get the paper? Why would the housekeeper find it odd that the alarm was off when she arrived that Friday when presumably Barry would always turn it off before she arrived. I find it hard to believe that Barry would turn the alarm off, open the door to retrieve the newspaper and then reset the alarm after coming back inside.
Especially since it seemed many people told KD the couple couldn't be bothered with security/alarms? Sometimes I think maybe KD is a bit mixed up. jmo.
 
  • #996
when she said off I think she meant "not armed". The alarm can be on when you are in the home, it is when a door (with wired contacts) is opened that the alarm will "notify" you that an entry (or exit) has occurred. One must enter a code and disarm the beeping from progressing into a full alarm sound off.
Apparently the cleaning lady told police it was always armed when she arrived. To me, she'd have to punch in a code within x many seconds in order to quiet any 'armed' alarm, and if not armed, then it will beep as people move around, but the alarm doesn't sound and doesn't need to be turned off/unarmed, since it's already unarmed.. but why would the alarm ever have been armed when people are moving about in the morning? I know people with home alarms who 'arm' it when they're going to bed at night. So did cleaning lady normally arrive before the couple had awoken? But then she also said B normally had already collected the newspaper before her arrival, so he'd need to be up and moving around for that to happen..... so ..... something's not making sense. Plus, if cleaning lady did not need to punch in a code when she arrived, then I imagine she wouldn't pay much notice to the keypad. imo.

Sometimes I wonder to myself if certain people have been advised not to share possibly key information with anyone, especially reporters. (the cleaning lady, the 'gardener', the realtor, and the neighbour with the video camera come to mind)
 
  • #997
I am curious why the cleaning lady didn't express her surprise that the door was locked when she arrived, since haven't we been told the couple didn't lock the doors when they were at home at least? But she seems not to have even mentioned that as an oddity. Meanwhile, the basement door at the rear of the home was apparently unlocked. I would like to know if that door was able to be locked from the inside as one is leaving that doorway, or if it needed a key to lock it once outside, and also if the front door key was keyed the same as this basement door, or if different key was needed.

Macatangay collected the paper, and the mail, and she and the trainer walked to the side door. It was locked. Macatangay used her key and was surprised to find the alarm system was off. As she later told police, it was always armed when she arrived. Honey’s aging gold Lexus SUV was in its regular spot by the side door.
....
Shechtman also pointed out to the detectives that the Shermans never locked their doors and also that “everyone wanted to get near Barry and Honey because of their wealth.”

‘Someone has killed my clients’: Newly released documents detail the day Barry and Honey Sherman were found dead, and what police did after
 
  • #998
the only thought that comes to my mind is she was not aware it was HS phone, with real estate people in she could have easily thought it was theirs and put it up so they could retrace steps and find it.
One might imagine the cleaning lady would've been familiar with Honey's 'jewelled case'?

Justice Leslie Pringle of the Ontario Court of Justice (designated to do all of the Sherman case warrants) allowed the execution of the warrant for Honey’s phone, a white iPhone with a recognizable jewelled case her friends identified to police. It was found in a powder room on the main floor of the Sherman home, fuelling speculation she had run there to escape an attacker.

 
  • #999
I am curious why the cleaning lady didn't express her surprise that the door was locked when she arrived, since haven't we been told the couple didn't lock the doors when they were at home at least? But she seems not to have even mentioned that as an oddity. Meanwhile, the basement door at the rear of the home was apparently unlocked. I would like to know if that door was able to be locked from the inside as one is leaving that doorway, or if it needed a key to lock it once outside, and also if the front door key was keyed the same as this basement door, or if different key was needed.

Macatangay collected the paper, and the mail, and she and the trainer walked to the side door. It was locked. Macatangay used her key and was surprised to find the alarm system was off. As she later told police, it was always armed when she arrived. Honey’s aging gold Lexus SUV was in its regular spot by the side door.
....
Shechtman also pointed out to the detectives that the Shermans never locked their doors and also that “everyone wanted to get near Barry and Honey because of their wealth.”

‘Someone has killed my clients’: Newly released documents detail the day Barry and Honey Sherman were found dead, and what police did after
I’ve never seen a photo of the basement door, but this is one set of doors on the main floor:

1656031846015.jpeg


(Image from houssmax.com original realtor photos).

The basement had a nanny’s quarters, so I’d think they likely used that one door by the pool or garage to access the basement, imo. (No idea if they had a nanny, but that’s how part of the basement was described in the floor plans.)
 
  • #1,000
Status
Not open for further replies.

Guardians Monthly Goal

Members online

Online statistics

Members online
65
Guests online
1,069
Total visitors
1,134

Forum statistics

Threads
636,375
Messages
18,695,821
Members
243,637
Latest member
zczejya29akn
Back
Top