ID - 4 University of Idaho Students Murdered - Moscow # 10

Status
Not open for further replies.
  • #961
Im not sure I quite get the same level of community reassurance as others. The last question the police captain literally reeled off 3 or 4 things that you wouldn’t class as normal.

Travel in pairs, tell people where you are going, don’t stay alone etc… The police are also continuing to tell people to be vigilant.

Doesn’t quite give the isolated targeted attack we have a POI under surveillance message to me.

Especially as Moscow probably has one of the highest density’s of police and troopers in the US at the moment already there to provide security.

There is community reassurance and then there is exceptional behaviour advice. This was exceptional behaviour advice.
 
  • #962
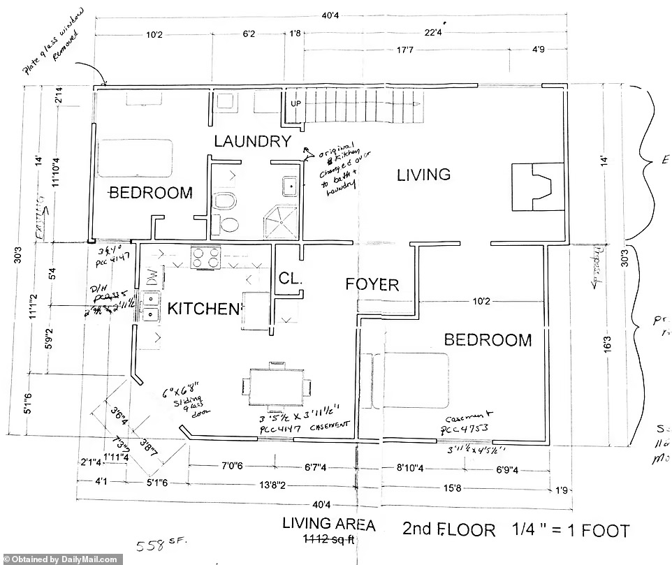
Otto, were you ever able to find a record of that renovation? I checked Moscow Planning and Zoning's permit records but was unable to find a permit for construction at that location. I was hoping there would be a set of as-built prints online. There site is not automated, though and I wasn't going through the PDFs for more that 24 months.
Building plans are available to the public, but only by specific request. However, it looks like the DailyMail requested the documents and published them.

Second Floor renovation. The kitchen is moved. Looks like the entire back of the house was added. The stairs are missing on the second floor (leading to the third floor), so perhaps the third floor was an after thought? These floor plans are very similar to what has been published here - minor differences, but insignificant. Third floor bathroom is different than the floorplans published here.

1669243349957.png


Third Floor

1669243457873.png


1669243807900.png


1669243879656.png
 
  • #963
I have a completely new opinion after this presser. I can’t say what it is (TOS), but I feel more confident than I did before. I think they know what happened and are waiting for test results to prove it.
<modsnip>
Yep! I’ve felt that from the beginning!!! Cross the t’s, dot the i’s!
 
Last edited by a moderator:
  • #964
Who was the target?
One or more of the young women?
In that case this could very well be a hate, gender-based crime. We don’t talk enough about this in US. Or insist on the simple recognition that many are murdered simply because they are women.

"Femicide differs from other forms of murder because it is the gender-related killing of a woman only because she is a woman," she explained. "This indicates that the root causes of femicide differ from other types of murder and are related to the general position of women in the society, discrimination against women, gender roles, unequal distribution of power between men and women, habitual gender stereotypes, prejudices and violence against women."

 
  • #965
The press conference further confirmed for me personally that E & X were the targets... this is my opinion only
Everyone around Kaylee and Maddie are being cleared. Don't hear anything about E and X
 
  • #966
Hi, it’s been years since I have been here. I browsed a few pages back and have some points and thoughts to make:

Mom of a few university students here. How it works where mine go, even for off campus housing, is each bedroom has a lease to itself. There have been numerous times when a bedroom was unoccupied for part of the semester or for the entire semester. Some places still do it old school and we have done both, but lately it’s been the each room has its own lease thing.

I’m not convinced at all they they knew the killer. Probably a male; think we all agree on that. I think they could be stuck on the crime of passion thing, but there have been a few serial killers who have done stabbings. I’m not convinced it’s a serial killer either, but I wanted to throw that out there.

One of my kids currently has several roommates in an off campus house. My kid is a nerd and doesn’t drink or party, so she wears earplugs when the roommates are there partying until 3 am and she also lock her bedroom door. Once, a drunk male came into her room and tried to get into bed with her: this one is a deep sleeper so she woke up confused and pushed the guy out and he eventually found the right bedroom. Hence, the locked door now. She would be one to sleep through a mass murder and not hear a thing and it would take her 12 hours to figure out something is wrong because she would know they were up until 3-5 am and would likely wake up after 2 p.m. Completely plausible for that to have happened in Idaho….
 
Last edited:
  • #967
That should go under the most bizarre advice ever, considering killer killed four people staying together, who traveled in pairs. How would that advice help to prevent a similar crime?
So this statement by LE immediately made me think about the two surviving roommates and how it’s been said (I think - it’s hard to keep up) that they both were out separately that night and arrived home separately around/by 1am.

I’m well aware these two roommates are not suspects, but what if somehow one of them was the intended target and the advice to travel in pairs was somehow related to one of them not having done that?
 
  • #968
“If there is anyone in the community that you’ve noticed has new cuts/scratched on their body/arms/face please report that”

NO this was never said by LE at the presser or ever …but can someone tell me WHY NOT? We know that there were defensive wounds. Why not ask for this ? Honestly asking.
 
  • #969
I just can’t figure out why the 2 girls were spared, He must have watched the house, if in fact our speculation is correct, He Would know how many people lived there, Maybe The surging girls had the door to bedroom locked I guess L.E will have an answer For this, but I think we got it right, It’s the only logical explanation for such a brutal crime that from what I am understanding such a brutal crime that even some of L.E May have needed counseling There’s no way this was a psychopath that picked a rad on house and just decided to butcher a bunch of people
I have no doubt that the 2 girls were spared either because 1) the killer didn't know that there were 2 more bedroom on the first floor, or 2) that those 2 girls had their bedroom doors locked.
 
  • #970
IT is Greek alphabete, should be pronounced khi
I know a little bit of Greek, and yes, that's how it should be (e as in eek on the end). But the anglicized equivalents are different, and if you don't use them nobody will know what you're talking about.
 
  • #971
Hi All, just joined websleuths to post about this case after reading all the threads!!

Does anyone know if Kaylee had a job, if so what was it? We know that Maddie and Xana worked at the Mad Greek but how was Kaylee able to fund her lifestyle? A new expensive car, a trip to Europe during an inflation crisis, everyday living expenses etc? We don't know how true the stalker report is but could it have something to do with her job, if she had one?

Just a thought......
 
  • #972
It has been previously posted and linked several times that the two unharmed roommates had been out of town and both returned home around 1 am. Sunday morning. :)


Edited to add link that has been previously posted.
That reporting is contradicted by MPD:

Detectives believe that on November 12th, the two surviving roommates had also been out in the Moscow community, separately, but returned home by 1 a.m. on November 13th.
 
  • #973
Yep! I’ve felt that from the beginning!!! Cross the t’s, dot the i’s!
How though ? How can they allow a person that they suspect of brutally murdering 4 people free on a college campus?
 
  • #974
A lot of it makes sense but a couple of show stoppers for me.

The police have shown no interest in the period 1.45-3.00 AM. They are looking for evidence of 3-6. Unless something happened later in the evening as a similar chain of events I’d expect police to want to look at earlier evidence. That blows a bit of a hole in the argument, left, armed and came back for me.

Secondly I’d expect if that had happened at least one of the housemates would have shared something in the intervening period and they would have a suspect. All suggestions are that at least a few of the victims were very into their phones, texting, social media etc… I find it hard to believe that if there was a large escalation with someone they knew not one of the 4 would have texted or otherwise sent any digital message between it happening and being murdered. Possible I suppose if the perpetrator was only away for a very short period of time. But the fact they were asleep doesn’t suggest that. Big fight, lots of adrenaline, to then be asleep when someone truths suggests a reasonable time window

Your points are well taken and admittedly, I am really just guessing here. But to play devils advocate…

First of all, I assume alcohol (or drugs) played a part in this tragedy. Every slight is magnified by alcohol,in my opinion. Everything escalates. Just my own opinion and observations, not providing documented case studies.

The roommates may have returned, with their own boyfriends, or alone…and just locked their doors downstairs and gone to sleep. An escalation doesn’t have to be loud and noisy. It could be the 4 of them confronting someone who was drunk and upset and telling them to leave. And maybe K and M did try to tell someone about it…the EX…but he did not pick up.

We have heard very little about X and E…and if they were only at the frat party before returning. We know about calls from K to her Ex…but X and E have been pretty much off the radar. Perhaps we will learn in time that what set off this horror was something relatively trivial to a normal mind…but a major insult to the killer. Perhaps the original problem was with E but the girls jumped to his defense and anger shifted according to words said in the moment. Kaylee’s sister said she was a fearless defender.

I remember a situation like this in my own life. A drunken sorority friend was confronted…didn’t seem like a big deal to the rest of us…we had no adrenaline uptick after it. We felt that we had just taken care of an unpleasant situation. But she did return in a fury. The feeling of being ganged up on…disrespected…and alcohol…just escalated the whole incident. Luckily it did not go further than that.

I don’t envy the job has…4 victims…so many scenarios. i think this will not be quick.
 
  • #975
I don't think his motivations were sexual. He might derive some sort of sexual release from the act of killing, but not a rational sexual motivation, anyway.

MOO, obviously
I think you're right about this. I saw a former FBi profiler mention that there are sick, deranged killers who are sexually stimulated by the act of stabbing alone.
 
  • #976

The residents of the town seem on edge - multiple calls about suspicious persons. I’m assuming more than normal.

Also to note, someone was going around taking down the posters with the tip line information.
 
  • #977
Building plans are available to the public, but only by specific request. However, it looks like the DailyMail requested the documents and published them.

Second Floor renovation. The kitchen is moved. Looks like the entire back of the house was added. The stairs are missing on the second floor (leading to the third floor), so perhaps the third floor was an after thought? These floor plans are very similar to what has been published here - minor differences, but insignificant. Third floor bathroom is different than the floorplans published here.

View attachment 382197

Third Floor

View attachment 382198

View attachment 382199

View attachment 382200
This article says X’s bedroom was the small one on the second floor. Has that been verified? I was leaning towards it being the larger one.
 
  • #978
I have a feeling this is going to be another Delphi, Rhoden family and/or McStay murders case.

Multiple victims, complicated evidence, and is going to take a LOOOONNNNGGGG time to solve. Sigh.
You can pretty much count on it. Police work is incompatible with mental versatility and creativity. That's not to impugn the police, just to say that the type of person who can succeed in police work is not liable to be a person who "thinks outside the box." If the evidence doesn't fit the paradigm, it usually takes much longer to get results.
 
  • #979
What puzzled me is that the killings happened straight above the two surviving girls bedrooms, but they didn't got alerted by the noise. Heavy sleepers?
I’ve always been a heavy sleeper (as a child I slept through our smoke alarm going off) and I take trazodone to help my anxiety most nights. I can’t remember the last time I was woken up by any noise/movement. It is possible to sleep through a LOT so I don’t think it’s that strange.
 
  • #980
Hi All, just joined websleuths to post about this case after reading all the threads!!

Does anyone know if Kaylee had a job, if so what was it? We know that Maddie and Xana worked at the Mad Greek but how was Kaylee able to fund her lifestyle? A new expensive car, a trip to Europe during an inflation crisis, everyday living expenses etc? We don't know how true the stalker report is but could it have something to do with her job, if she had one?

Just a thought......
It’s been stated that she had an internship where she had just been offered a position. Unsure if the internship was paid or if she had another job?
 
Status
Not open for further replies.

Guardians Monthly Goal

Staff online

Members online

Online statistics

Members online
158
Guests online
1,370
Total visitors
1,528

Forum statistics

Threads
636,593
Messages
18,700,176
Members
243,770
Latest member
rebelgrrrl
Back
Top