ID - 4 University of Idaho Students Murdered - Moscow # 11

Status
Not open for further replies.
  • #301
Police have said that this was "targeted". I understand that to mean that one of the victims was the target. I'm guessing that the reason police say that it was targeted is that one of the victims had more, or different, injuries. Maybe he spent a little more time with one of the victims. That's just a guess.

If the culprit entered the house via the kitchen sliding door (red crime scene tape on door), and if his target was on the third floor (easy to see into the bedrooms from hill behind house), then perhaps he thought it was best to kill everyone on the second floor before going to the third floor - to reduce chances of being caught. Eliminate witnesses or anyone who could run out of the house before the culprit did. Numbers 5 and 6 are interchangeable.

View attachment 382271
I agree with you about the "being targeted" having something to do with the injuries; perhaps more actual knife thrusts than the others, perhaps deeper or more concentrated such as in the heart (sorry everybody). The coroner had made the assessment that one victim was targeted. Had it been something at the scene, such as a note left behind, something written on the wall, whatever-- then I would think that LE would have made the call of "targeted" as opposed to the coroner. MOO
 
  • #302
Images removed i think
Not exact, but close.

1669262726776.png
 
  • #303
So a thought about the importance of video and the "what you don't see being as important as what you do see."

LE can use exterior surveillance cameras to track a subject's route through an area. It takes time, but imagine 10 houses in a row, each with a doorbell camera pointing to the street. A subject running down the street appears on the first 6 cameras, but not on the last 4. This shows that the running subject did not continue on that route. They may have gone into one of the buldings, gotten into a vehicle, or changed direction. If they changed direction you would want to check the cameras (if any) on all of the possible routes from the point of the last camera that caught an image of the running subject.

Obviously, a resident would only know what was on their camera, so having video from as many cameras as you can is important, even if there is nothing on your own video.
Yes! This! That’s how they figured out Molly Tibet’s case. Good watch on Datelines ‘Last Day’
 
  • #304
  • #305
There are a lot of posts questioning how the two surviving girls didn't hear anything. How could they have slept thru this attack? Clearly it does pose questions, but I feel that there are possible reasons for this. One, we don't know how much noise was actually made. We assume that it would have been chaotic and extremely loud, but if the killer or killers somehow were able to muffle the screams, maybe with a pillow or something it might not have been as loud as one would think. Two, we don't know the state the two survivors were in. Had they been drinking and basically passed out in bed? Three, it had been said that this was sort of a party house, with a lot of people coming and going, and it may have not been unusual for loud noises at all hours.
In all reality we really don't know what those two girls heard or didn't hear.(or what they told LE) So while it would seem that an attack like this would be loud, we don't know enough about what exactly happened or how it happened to be able to figure that part out.
I agree. There was very little noise or disturbance, in my opinion, or the surviving housemate directly under the couple's room wouldn't have slept through the murders. Authorities said the victims were sleeping. Each victim was overcome and incapacitated quickly. Any defensive wounds could have happened instinctively and while in bed. There was no scream of fear or warning, no attempt to flee, no physical scuffle over the knife that might have woken up a roommate in another room or on another floor. As someone with military experience explained earlier, a victim may not have the ability to scream after being stabbed.

The layout of the house and the location of the survivors' rooms in the basement/first floor protected them, in my opinion. If they'd become aware of the attacks, they'd have become victims too, IMO.

Conditioning may have also been a factor. In a household with 6 bedrooms plus possible visitors, housemates learn to tune out noise. Plus if these young people were like my kids, they often sleep with earbuds in.
 
  • #306
  • #307
  • #308
I think cases are getting more difficult to solve as technology becomes more and more advanced, of course, but imagine the murderer being well acquainted with the ins and outs of what LE does and forensics, etc. I am still not sure if the crime scene was sloppy or not
 
  • #309
I agree. There was very little noise or disturbance, in my opinion, or the surviving housemate directly under the couple's room wouldn't have slept through the murders. Authorities said the victims were sleeping. Each victim was overcome and incapacitated quickly. Any defensive wounds could have happened instinctively and while in bed. There was no scream of fear or warning, no attempt to flee, no physical scuffle over the knife that might have woken up a roommate in another room or on another floor. As someone with military experience explained earlier, a victim may not have the ability to scream after being stabbed.

The layout of the house and the location of the survivors' rooms in the basement/first floor protected them, in my opinion. If they'd become aware of the attacks, they'd have become victims too, IMO.

Conditioning may have also been a factor. In a household with 6 bedrooms plus possible visitors, housemates learn to tune out noise. Plus if these young people were like my kids, they often sleep with earbuds in.
I hope this was not too painful or scary for them but of course we know how horrific knifings are :( this is terrible
 
  • #310
I agree with you about the "being targeted" having something to do with the injuries; perhaps more actual knife thrusts than the others, perhaps deeper or more concentrated such as in the heart (sorry everybody). The coroner had made the assessment that one victim was targeted. Had it been something at the scene, such as a note left behind, something written on the wall, whatever-- then I would think that LE would have made the call of "targeted" as opposed to the coroner. MOO
Police have said repeatedly that it was targeted. During the press release this afternoon, police declined to say why they believe this.

That tells me it wasn't that all four were a target - which would point to a psychopath like Bundy. One of the four was the target, and something about the scene makes that clear.

If one of the four was a target, then that person met or interacted with the murderer at least once.
 
  • #311
I’m caught up - didn’t think it would happen. So 2 questions.

For those who think the perp is female, can you point me to cases where a knife mass murder of non-family members was committed by a female?

Second, is it possible the cops have used cell phone data to determine the times the various housemates arrived back home?

Thx!
Look up the murder of Skylar Neese- 16 year old stabbed to death by her 2 best friends
 
  • #312
I sleep through the type of alarm that you put under your pillow and it vibrates a lot until you turn it off, I don't know why many people are doubting someone could be asleep in a level below
 
  • #313
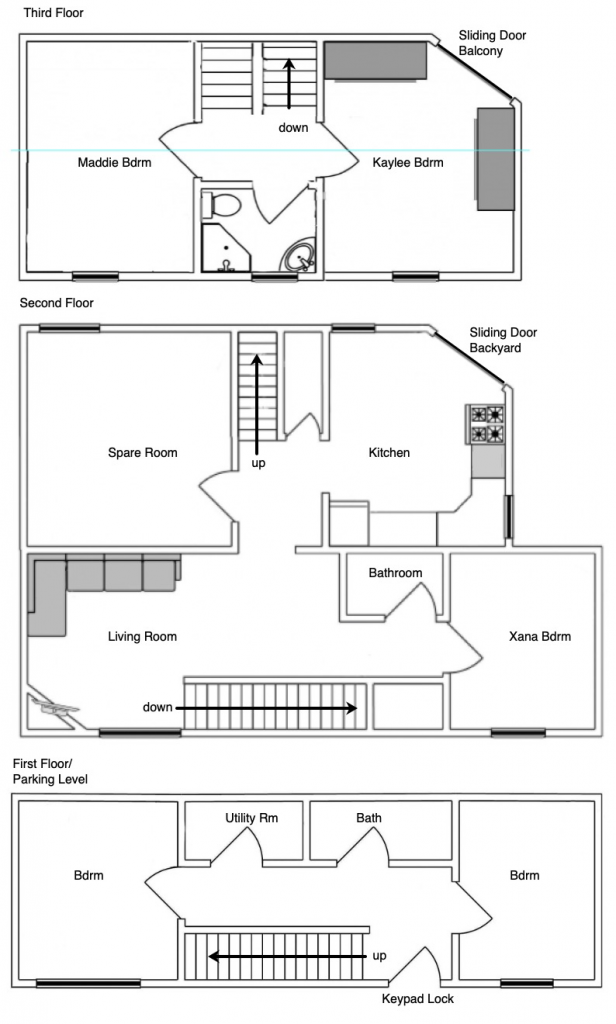
I appreciate all the work you have done with the floorplans. I'm just wondering how do you make sense of the 11th picture in the zillow listing? Doesn't the location of bathroom have to be where you and I had it initially? I can't see a way how the bathroom is in the middle. Am I crazy? I'm sure it doesn't really make much of a difference in the long run but I guess I'm just curious.
7823e4607a10db712994adf8548aeee2-uncropped_scaled_within_1536_1152.webp

1122 King Rd, Moscow, ID 83843 | Zillow
 
  • #314
I agree. There was very little noise or disturbance, in my opinion, or the surviving housemate directly under the couple's room wouldn't have slept through the murders. Authorities said the victims were sleeping. Each victim was overcome and incapacitated quickly. Any defensive wounds could have happened instinctively and while in bed. There was no scream of fear or warning, no attempt to flee, no physical scuffle over the knife that might have woken up a roommate in another room or on another floor. As someone with military experience explained earlier, a victim may not have the ability to scream after being stabbed.

The layout of the house and the location of the survivors' rooms in the basement/first floor protected them, in my opinion. If they'd become aware of the attacks, they'd have become victims too, IMO.

Conditioning may have also been a factor. In a household with 6 bedrooms plus possible visitors, housemates learn to tune out noise. Plus if these young people were like my kids, they often sleep with earbuds in.
I’m rather new to this sleuthing stuff. For those of you that have been following crimes, if the FBI really thinks a police department is incompetent, would they take over the investigation or just help quietly behind the scenes?
 
  • #315
Why the perp was likely local or localish...
Perp knew the house....

One cannot stake out the house on Google. 500-718 Queen Rd · 500-718 Queen Rd, Moscow, ID 83843 (No matter how you turn it around, you can't see the sliding doors)
Home looks meh...from Street View and shows lower level and would not appeal to someone wanting to break in.

One does not know that there are sliding doors etc...
Zillow also does not show the sliding doors.
Whoever did this, knew about the sliding doors and was likely familiar with the area. Likely didn't just "meet them on Saturday night and follow them home" Perp was at least somewhat familiar with the residence.

I double checked zillow. yeah I see two pics showing the sliding doors.
 
  • #316
In Idaho…maybe. But come and try to commit a crime anywhere within 50 miles of me. They’ll have every inch of your travels documented by video. 75% of my neighbors have video doorbells. 50% have other supplementary cameras. I don’t think I could count one business without visible surveillance. And I live in one of the safest communities in the country.

The reason we haven’t seen a major resurgence of serial killers the likes of the 70s/80s is because of technology.

Edit: just to make clear. There are many reasons murder clearance rates were higher in the 60s/70s/80s and almost none of them had to do with lack of technology for criminals or really good police work.

Clearance rates were fudged, suspects had less rights, the rise of gun violence made murders a lot less personal with a lot less contact and the list goes on and on.
 
Last edited:
  • #317
To view this content we will need your consent to set third party cookies.
For more detailed information, see our cookies page.

103 pieces of evidence collected in 10 days​

 
  • #318
I think cases are getting more difficult to solve as technology becomes more and more advanced, of course, but imagine the murderer being well acquainted with the ins and outs of what LE does and forensics, etc. I am still not sure if the crime scene was sloppy or
I think we'll have to wait for awhile on that answer. I think sloppy=messy and characterizes the scene, which I think was horrific and left this PD, largely, at a loss for words to describe it without saying too much.
 
  • #319
Just wondering did you ever confirm that was indeed the spare bedroom? IMO from photos ect it was not a spare bedroom it was occupied - both on that floor were MOO

Confirmed here:

1669263394444.png


DailyMail
 
  • #320
I may be wrong, but, I believe that the coroner was the first person to say that one was targeted (LE had reported that the coroner had indicated that). I know that LE is saying it now, but, just as "repeating" what the coroner had said. Again, I may be wrong about that :)
 
Status
Not open for further replies.

Staff online

Members online

Online statistics

Members online
94
Guests online
2,456
Total visitors
2,550

Forum statistics

Threads
633,049
Messages
18,635,596
Members
243,391
Latest member
Mtnmomma86
Back
Top