GA GA - Shirley, 87, & Russell Dermond, 88, Putnam County, 2 May 2014 - #11

Status
Not open for further replies.
  • #1,461
The transom window over the door - I found this.

'In today's modern architecture, you're likely to come across ventilating transoms in spa-like bathrooms. Located all the way up near the ceiling, this top dog adds diffused light for function and beauty while also working hard to ventilate.'

Transom Windows: Why Use Them — and Where?
THey were used a lot in historic homes, most of the time its's to the exterior but I have seen some over bedroom doors as well in not so old homes

there are 5 baths in this 4 bdrm house, one is a hall bath......so is that the bath ? and the other garage? I just think there is room for the middle door in kitchen to be pantry since it's a corner and that is the garage wall, it's not flush to the wall, one of those 2 in hall goes to garage
maybe the one without transom window
 
  • #1,462
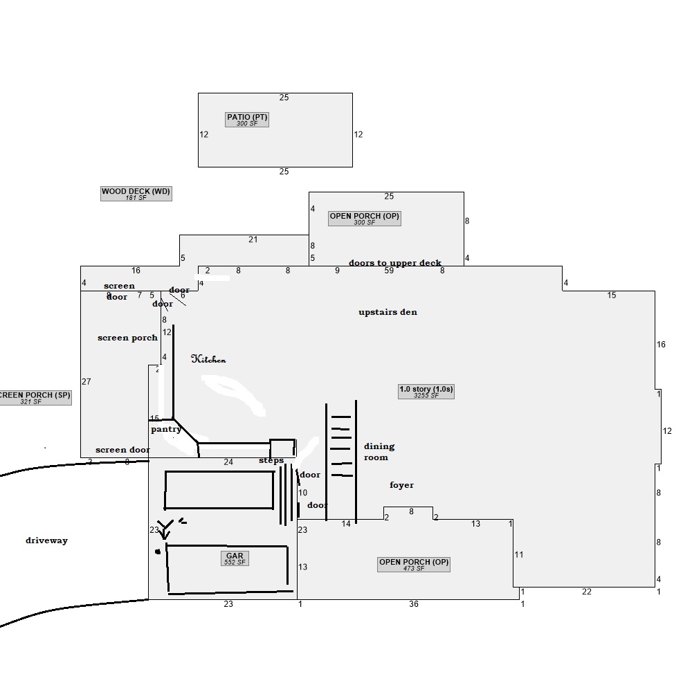
https://www.websleuths.com/forums/attachments/dermond-house-plan-detailed-jpg.141831/

Well I tried to reply and then copy your house layout drawing to refer to but I couldn't get it to show up.

I pictured the kitchen being turned around with the pantry being in the left rear corner of the house with the bathroom being between the kitchen and screened porch and the staircase being next to the garage so I will have to rethink a few things.

One thing about your drawing the way it is, the door to the bathroom doesn't go anywhere. The pantry and cabinets need to be moved up more into the kitchen so the bathroom could be put behind the pantry and cabinets
 
  • #1,463
That could work because the kitchen looks bigger in my drawing but I just used the existing walls shown

I was trying to figure out how the bathroom could be in the garage area but I like your thoughts on their being another wall that brings the kitchen forward so that th ebathroom would back up to the pantry

I think the door in the hall furthest from the kitchen to the wall goes to garage then

but wanted you to see it the way I did

I'll draw it up...…..just save my image to your computer then you can play with it
https://www.websleuths.com/forums/attachments/dermond-house-plan-detailed-jpg.141831/

Well I tried to reply and then copy your house layout drawing to refer to but I couldn't get it to show up.

I pictured the kitchen being turned around with the pantry being in the left rear corner of the house with the bathroom being between the kitchen and screened porch and the staircase being next to the garage so I will have to rethink a few things.

One thing about your drawing the way it is, the door to the bathroom doesn't go anywhere. The pantry and cabinets need to be moved up more into the kitchen so the bathroom could be put behind the pantry and cabinets
 
  • #1,464
attached, revised, sorry so sloppy but you get the idea LOL

so now how close was he to that garage door, mustve been right up on it for LE to think that they were concerned the blood woiuld flow out under door

he was laying in a pool of blood all around, a lot I gathered from discussion and descriptions on podcast

towels are usually used to get up large spills, sooo seems logical LE would say they did

also that he was sort of hidden in garage

they didn't disturb house so anyone that did come in might not notice anything amiss if they didn't go all thru like this couple did

also they hid Mrs D but not for long either, along the main water way, in the tree stump shore line where anyone could find her, SS said they didn't expect anyone to find her any time soon because no one fishes in there, I saw a fishing map and they are all around that area and anyone going to their spots, pass this one where she was found, its on the main river tho not as populated an area because naturally they aren't going to drop her right outside homes but if they didn't want her found, why didn't they drop her in an area off the main river...…..??

SO all that said...…..did they want RD found but not right away? did they not staunch the blood flow? I mean they left him for a reason or they'd have taken both or left both In my mind

https://www.websleuths.com/forums/attachments/dermond-house-plan-detailed-jpg.141831/

Well I tried to reply and then copy your house layout drawing to refer to but I couldn't get it to show up.

I pictured the kitchen being turned around with the pantry being in the left rear corner of the house with the bathroom being between the kitchen and screened porch and the staircase being next to the garage so I will have to rethink a few things.

One thing about your drawing the way it is, the door to the bathroom doesn't go anywhere. The pantry and cabinets need to be moved up more into the kitchen so the bathroom could be put behind the pantry and cabinets
 

Attachments

  • Dermond house plan detailed revised.jpg
    Dermond house plan detailed revised.jpg
    90 KB · Views: 13
  • #1,465
you also have to look at the garage and screen compared to the kitchen that opens up to the screened porch, which leads to driveway and in front of garage which when you drive in is facing the front porch

look at those pictures and see what you think, I saw a grill to on deck so I don't see it turned around but I could be wrong

Im always playing with house plans, never one I don't rearrange LOL
https://www.websleuths.com/forums/attachments/dermond-house-plan-detailed-jpg.141831/

Well I tried to reply and then copy your house layout drawing to refer to but I couldn't get it to show up.

I pictured the kitchen being turned around with the pantry being in the left rear corner of the house with the bathroom being between the kitchen and screened porch and the staircase being next to the garage so I will have to rethink a few things.

One thing about your drawing the way it is, the door to the bathroom doesn't go anywhere. The pantry and cabinets need to be moved up more into the kitchen so the bathroom could be put behind the pantry and cabinets
 
  • #1,466
Looking through the glass door in the kitchen, it shows white railings which would be the screen porch and not the back deck so you may be right on the layout.
Does it look like the deck with the grill is on a little lower plane than the kitchen walkout?
And, looking at the garage picture, could the small window between the screened porch and the garage be for the bathroom you added in?
Do you remember if any of the old pictures showed the bottom of the stairs? I can remember the elevator and some paint buckets and rags but I didn't pay attention to much else.
 
  • #1,467
Looking through the glass door in the kitchen, it shows white railings which would be the screen porch and not the back deck so you may be right on the layout.
Does it look like the deck with the grill is on a little lower plane than the kitchen walkout?
And, looking at the garage picture, could the small window between the screened porch and the garage be for the bathroom you added in?
Do you remember if any of the old pictures showed the bottom of the stairs? I can remember the elevator and some paint buckets and rags but I didn't pay attention to much else.
from previous viewings I remembered that I thought the door goes into the screen porch and also from there, right , to the deck, there is a landing and I think the grill was lower.....when you come inside the main level, or ground level front yard and go around back deck, its upper level...…..I don't remember the basement or bottom of steps

yeah here is back of house with grill, and in the window looking out the kitchen to deck railing you can see the stairs rail going down at an angle

let me look at window I don't remember it

OH WOW, that's an illusion, lol, I couldn't tell if that wall and window is flush to the garage doors or if it was jutted out wall with window on screen porch, that cant be though

Logically its in the pantry or workroom or bath if you look at how I drew it up...…..surely the pantry isn't the bathroom! right into the kitchen would be odddd…….. so its either an extra long bathroom the length of garage or its a separate workroom/closet in garage or a very deep pantry and window is to one IM sure, never noticed it before

I think the kitchen door to screen was unlocked when neighbors arrived then they exited the front door and waited for LE to arrive
 

Attachments

  • dermond back of house.jpg
    dermond back of house.jpg
    184 KB · Views: 10
Last edited:
  • #1,468

Attachments

  • oconeemap.gif
    oconeemap.gif
    40.9 KB · Views: 5
Last edited:
  • #1,469
  • #1,470
  • #1,471
Is there a fisherman on here? DO THEY fish stumps? Cuz this site says thats where the Bass are........so IF THATS the case, WHY would they put SD there if they didn't hope she'd be found!?? Hook, line and sinker! How To Fish Stumps And Stump Rows For Big Bass
 
  • #1,472
SD was found in the bend in the river on the green county side of lake across from Long Shoals so they may have exited or entered or both there instead of Lawrence shoals that ive been saying......i think the reference to the dam made me think further down........road trip...gotta check this out Google Maps
 
  • #1,473
  • #1,474
I had a fishing and topography map of the lake at one time, where SD was found,
cant find it
 
  • #1,475
There are videos of night fishing on the lake.

Did somebody think they had money out to bet on the Derby?

If so, perhaps perps who knew about the party, that area, the lake, but not enough about the Dermonds?

Somebody may have given them a false or bad tip, and when they came up short, rage, a message to the party goers and a trophy taken back to the tipster.

This has probably come up before, just starting to catch up again.

Thank you for posting those great most recent podcasts, especially.
 
Last edited:
  • #1,476
There are videos of night fishing on the lake.

Did somebody think they had money out to bet on the Derby?

If so, perhaps perps who knew about the party, that area, the lake, but not enough about the Dermonds?

Somebody may have given them a false or bad tip, and when they came up short, rage, a message to the party goers and a trophy taken back to the tipster.

This has probably come up before, just starting to catch up again.

Thank you for posting those great most recent podcasts, especially.


Well they had money and although no money was taken they could have taken some expensive stuff from the house but for some weird reason they decided to leave a rolex on the counter and both had money in their wallets so i'm thinking robbery or extortion can be ruled out
 
  • #1,477
Right. But you can't turn around a Rolex overnight or get cash off a charge card.

Way out there follows:

They were expected to take cucumber sandwiches to the party. Could Mrs. Dermond have gone out early for bread? She was dressed.

Somebody having to pay somebody off in hurry turns them onto the Dermonds, it doesn't work out the way they expected. Thus the rage and brutality, then they had to wait til dark and watch the blood get close to garage doors, get towels, with time, cleanup after themselves.

Stolen property would risk a trail and they had gone there for big bucks.

Maybe whomever came with the boat was local. She was taken away either to extort him or mislead the investigation. The pro waited in the garage with Mr. Dermond's body. Didn't go back in the house. Knew the doors were open. Hid there with the body for a long time. Took a walk outside thinking he wouldn't be seen, maybe looking for cinder blocks? There was a need for him to be out he wasn't expecting, maybe to relieve himself, to go somewhere to meet the boat?

Somebody who misunderstood what the Dermonds had in their home and was angry to not get it, but patient and experienced.
 
Last edited:
  • #1,478
gah, sorry bout this, delete
 
  • #1,479
NO don't delete it! I want to respong to a few things , good post...….

Yes you can pawn a rolex
I think they had cash in wallets left in house

MrD had gone to Publix on Thursday and bought bread IIRC, maybe cucumbers too, its on one of the articles with video of him

Mrs D always rose early, she did her crossword puzzles in the mornings
and had worked the Saturdays puzzle iIRC

You are right about trails, but someone closer to them would have NOT taken their personal things in order to prevent detection

LE is certain it was someone they knew or atleast acquainted with

so even someone they knew could have come up, they trusted them

Gah! They went to a lot of trouble to avoid detection

well it was someone they knew because too many factors on the criminals side.....so whoever did it KNEW what was up around there!


Right. But you can't turn around a Rolex overnight or get cash off a charge card.

Way out there follows:

They were expected to take cucumber sandwiches to the party. Could Mrs. Dermond have gone out early for bread? She was dressed.

Somebody having to pay somebody off in hurry turns them onto the Dermonds, it doesn't work out the way they expected. Thus the rage and brutality, then they had to wait til dark and watch the blood get close to garage doors, get towels, with time, cleanup after themselves.

Stolen property would risk a trail and they had gone there for big bucks.

Maybe whomever came with the boat was local. She was taken away either to extort him or mislead the investigation. The pro waited in the garage with Mr. Dermond's body. Didn't go back in the house. Knew the doors were open. Hid there with the body for a long time. Took a walk outside thinking he wouldn't be seen, maybe looking for cinder blocks? There was a need for him to be out he wasn't expecting, maybe to relieve himself, to go somewhere to meet the boat?

Somebody who misunderstood what the Dermonds had in their home and was angry to not get it, but patient and experienced.
 
  • #1,480
watching ID, nothing was stolen......no traces, no dna, no weapon, no witnesses...…...Jennifer and BF matt fletcher appear to get away with murder, she answered door to police, acting like the poor scared wife.........jenn got her husbands life ins policy however the Jenn and Matt the BF, were not cautious about appearances...…..finally nabbed due to carelessness...…...somebody in THIS CASE maybe familiar with but not FROM or living in the area currently or could have been living in the area before
 
Last edited:
Status
Not open for further replies.

Guardians Monthly Goal

Staff online

Members online

Online statistics

Members online
54
Guests online
1,371
Total visitors
1,425

Forum statistics

Threads
636,704
Messages
18,702,104
Members
243,837
Latest member
iamthewalrus655
Back
Top